物件搜尋:


大阪府 大阪市中央区(ローレルタワー堺筋本町)

專家的建議


〇24時間、毎日ゴミ出し可
〇ペット飼育可(規約による規制有)
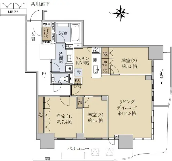
〇地上44階的制震構造的高層タワーレジデンス
〇2024年1月築
〇南向きにつき、陽当り・眺望・通風良好!
〇共用部分充実してます

【周辺施設】
〇ファミリーマート久太郎町二丁目店まで約60m 徒歩1分
〇コーヨー南船場店まで約260m 徒歩4分
〇大阪市中央区役所まで約400m 徒歩5分
〇三菱UFJ銀行船場支店まで約1

近期網站遭惡意攻擊,基於安全考量
目前僅接受會員查詢物件詳細資料
類型 大樓
物件編號 1084813
名稱 ローレルタワー堺筋本町
價格 24,100万円
物件現況 居住中
管理費等 24,460円
修繕積立金 7,610円
所在地 大阪府大阪市中央区久太郎町2丁目
交通 大阪メトロ中央線堺筋本町 (步行 2 分)
格局 3LDK
房號 --
總樓層 29階部分/44階建 
屋齡 2024 年 (築 1 年)
面積 88.20㎡
約 26.68 坪
約 949.38 平方英呎
陽台 11.9m²
約 3.60 坪
約 128.09 平方英呎
平米單價 日幣:273.24万円
台幣:56.27萬
港幣:14.36萬
坪單價 日幣:903.28万円
台幣:186.00萬
港幣:47.47萬
平方英呎 日幣:25.38万円
台幣:5.23萬
港幣:1.33萬
總戶數 511
方位 南/角部屋
建築構造 鉄筋コンクリート造
土地權利 所有権
用途地域 -
管理形態 全部委託
管理公司 近鉄住宅管理
管理人 日勤
建築公司 長谷工コーポレーション
土地面積 -
都市計畫 -
備註 大阪メトロ中央線堺筋本町駅徒歩2分!壮大にして美しいタワーマンション!!
南向き角住戸につき日当り良好!!
情報公開日 2025年10月1日
目前狀態 居住中
合約狀態 仲介
個人情報蒐集前告知
JP-Home.com 日本房屋網為上益國際有限公司經營管理,為了確保消費者之個人資料、隱私及消費者權益之保護,於交易過程中將使用消費者之個人資料,謹依個人資料保護法第 8 條規定,蒐集個人資料除用於本公司之會員管理、客戶管理之檢索查詢等功能外,本公司將利用個人電話號碼、LINE、Email 資料進行行銷,如有侵害到個人權益,請告知請求刪除會員資料。