物件搜尋:


京都府 京都市右京区(京都市右京区龍安寺池ノ下町戸建)

專家的建議


~世界遺産龍安寺が約160m的位置にあります~
○通風良好
〇南向きにつき、陽当り良好
〇室内大変丁寧に使用
〇事薬用:投資用物件としてもご検討ください
〇部屋数が多く、書斎にも、物置にも、お子様的お部屋にも、様々な用途でお使いいただけます
〇ガレージ有(車種による)
〇角敷地(ただし、建ぺい率は緩和されません。)

~周辺施設~
〇山田医院まで約750m
〇立命館大学まで約750m

近期網站遭惡意攻擊,基於安全考量
目前僅接受會員查詢物件詳細資料
類型 一戶建
物件編號 1084814
名稱 京都市右京区龍安寺池ノ下町戸建
價格 5,390万円 > 5,300万円
物件現況 空家
管理費等 0円
修繕積立金 0円
所在地 京都府京都市右京区龍安寺池ノ下町
交通 京福北野線龍安寺 (步行 8 分)
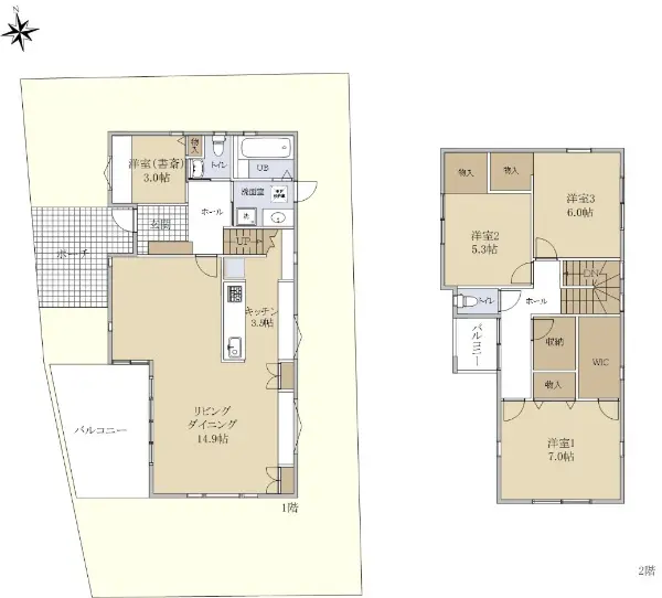
格局 4LDK
房號 --
總樓層 2階建 
屋齡 2022 年 (築 4 年)
面積 107.64㎡
約 32.56 坪
約 1,158.64 平方英呎
平米單價 日幣:50.07万円
台幣:10.03萬
港幣:2.49萬
坪單價 日幣:165.53万円
台幣:33.15萬
港幣:8.22萬
平方英呎 日幣:4.65万円
台幣:0.93萬
港幣:0.23萬
總戶數 1
方位 --
建築構造 木造
土地權利 所有権
用途地域 第1種低層住居専用地域
土地面積 148.77㎡
都市計畫 市街化区域
備註 京福電鉄北野線「龍安寺』駅徒歩8分!
洋風の存在感のある外観・意匠性と機能性を兼ね備えた住宅設備など魅力が尽きない静かな住宅地です。
全居室収納付きなのでとても便利です!
ご内覧可能となっております。
情報公開日 2025年10月1日
目前狀態 空家
合約狀態 仲介
個人情報蒐集前告知
JP-Home.com 日本房屋網為上益國際有限公司經營管理,為了確保消費者之個人資料、隱私及消費者權益之保護,於交易過程中將使用消費者之個人資料,謹依個人資料保護法第 8 條規定,蒐集個人資料除用於本公司之會員管理、客戶管理之檢索查詢等功能外,本公司將利用個人電話號碼、LINE、Email 資料進行行銷,如有侵害到個人權益,請告知請求刪除會員資料。


  • 宜家國際地產(統一編號:42647425)
    本網站所刊登之不動產物件均已合法授權刊登
    本網站內容享有著作權,禁止侵害,違者必究
    Copyright © 2011 - 2026 All Rights Reserved