物件搜尋:


東京23区 大田区(大田区久が原2丁目戸建)

專家的建議


【交通アクセス】
〇東急池上線「久が原」駅 徒歩12分
〇東急池上線「千鳥町」駅 徒歩15分
〇都営浅草線「西馬込」駅 徒歩16分

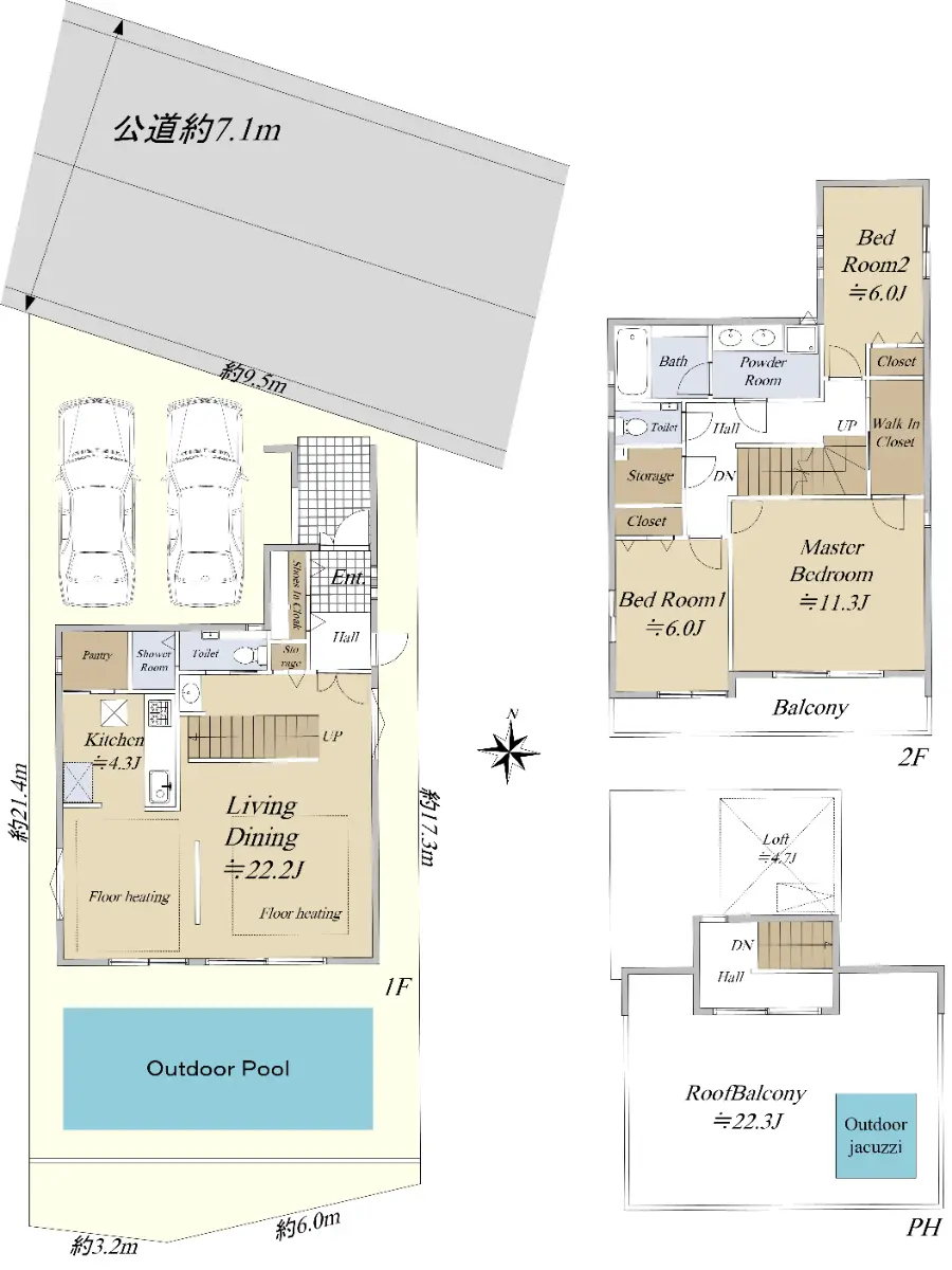
■自宅でリゾート気分!プライベートプール付き邸宅

■南向き的ため、たっぷり的陽光に包まれる明るい住まい

■ご家族みんながゆったりくつろげる約22.2帖的広々リビング

■優しいぬくもりに包まれる床暖房付

■たっぷり収納でお部屋すっ

近期網站遭惡意攻擊,基於安全考量
目前僅接受會員查詢物件詳細資料
類型 一戶建
物件編號 1085006
名稱 大田区久が原2丁目戸建
價格 16,980万円 > 16,900万円
物件現況 空家
管理費等 0円
修繕積立金 0円
所在地 東京都大田区久が原2丁目
交通 東急池上線久が原 (步行 12 分)
格局 3LDK
房號 --
總樓層 2階建 
屋齡 2018 年 (築 8 年)
面積 125.74㎡
約 38.04 坪
約 1,353.47 平方英呎
平米單價 日幣:135.04万円
台幣:27.50萬
港幣:6.81萬
坪單價 日幣:446.42万円
台幣:90.90萬
港幣:22.52萬
平方英呎 日幣:12.55万円
台幣:2.55萬
港幣:0.63萬
總戶數 1
方位 --
建築構造 木造
土地權利 所有権
用途地域 第1種低層住居専用地域
土地面積 180.21㎡
都市計畫 市街化区域
備註 この度は「大田区久が原2丁目 プール付き戸建」紹介ページをご覧いただき、誠に有難うございます。

本物件は2018年7月築の延床面積125.74㎡、3LDKの戸建です。
土地面積は180.21㎡ございます。

本物件は南向きのため、たっぷりの陽光に包まれる明るい住まいです。
また、約22.2帖の広々リビングのため、ご家族みんながゆったりくつろげます。

庭にはプライベートプールが付いており、お子様と一緒に水遊びができます。ルームバルコニーにはジャグジーもございます。

情報公開日 2025年10月2日
目前狀態 空家
合約狀態 仲介
個人情報蒐集前告知
JP-Home.com 日本房屋網為上益國際有限公司經營管理,為了確保消費者之個人資料、隱私及消費者權益之保護,於交易過程中將使用消費者之個人資料,謹依個人資料保護法第 8 條規定,蒐集個人資料除用於本公司之會員管理、客戶管理之檢索查詢等功能外,本公司將利用個人電話號碼、LINE、Email 資料進行行銷,如有侵害到個人權益,請告知請求刪除會員資料。