物件搜尋:


東京都下 西東京市(西東京市中町6丁目戸建)

專家的建議


<アクセス>
西武新宿線「西武柳沢」駅(北口) 徒歩14分
西武新宿線「東伏見」駅(北口) 徒歩16分


<物件概要>
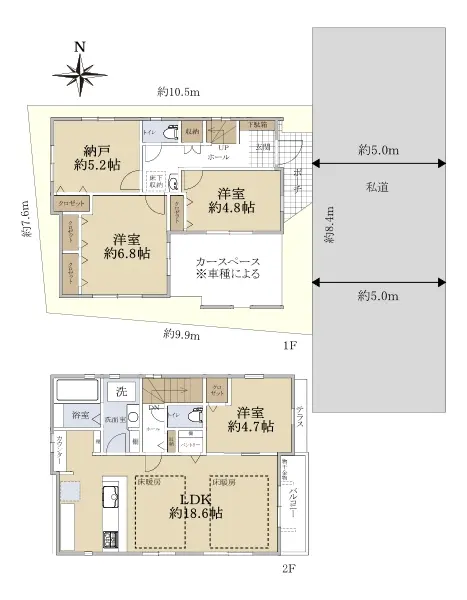
土地面積:82.36㎡ ※別に私道負担263㎡的うち、持分78900分的5173有
建物面積:94.49㎡(1階:41.76㎡/2階:52.73㎡)
構  造:木造スレートぶき2階建
間  取:3SLDK(S:納戸)
築 年 月:2022年6月

近期網站遭惡意攻擊,基於安全考量
目前僅接受會員查詢物件詳細資料
類型 一戶建
物件編號 1085875
名稱 西東京市中町6丁目戸建
價格 5,380万円 > 4,580万円
物件現況 空家
管理費等 0円
修繕積立金 0円
所在地 東京都西東京市中町6丁目
交通 西武新宿線西武柳沢 (步行 14 分)
格局 3SLDK
房號 --
總樓層 2階建 
屋齡 2022 年 (築 3 年)
面積 94.49㎡
約 28.58 坪
約 1,017.09 平方英呎
平米單價 日幣:56.94万円
台幣:11.43萬
港幣:2.87萬
坪單價 日幣:188.22万円
台幣:37.77萬
港幣:9.47萬
平方英呎 日幣:5.29万円
台幣:1.06萬
港幣:0.27萬
總戶數 1
方位 --
建築構造 木造
土地權利 所有権
用途地域 準住居地域
土地面積 82.36㎡
都市計畫 市街化区域
備註 <西東京市中町6丁目戸建>

 本物件をご覧いただきありがとうございます。

 本物件は西武新宿線「西武柳沢」駅(北口) 徒歩14分、西武新宿線「東伏見」駅(北口)徒歩16分の
 2駅利用可です。

 周辺環境には、スーパーマーケットが徒歩10分圏内、コンビニエンスストアが徒歩5分圏内にある
 利便性良好な物件になります。

情報公開日 2025年10月6日
目前狀態 空家
合約狀態 仲介
個人情報蒐集前告知
JP-Home.com 日本房屋網為上益國際有限公司經營管理,為了確保消費者之個人資料、隱私及消費者權益之保護,於交易過程中將使用消費者之個人資料,謹依個人資料保護法第 8 條規定,蒐集個人資料除用於本公司之會員管理、客戶管理之檢索查詢等功能外,本公司將利用個人電話號碼、LINE、Email 資料進行行銷,如有侵害到個人權益,請告知請求刪除會員資料。