物件搜尋:


東京都下 調布市(調布市東つつじケ丘3丁目戸建)

專家的建議


~緑が多く落ち着いた住環境に佇む
  新築時売主:三井不動産レジデンシャル株式会社 ファインコートシリーズ~

◆担当者から的オススメポイント
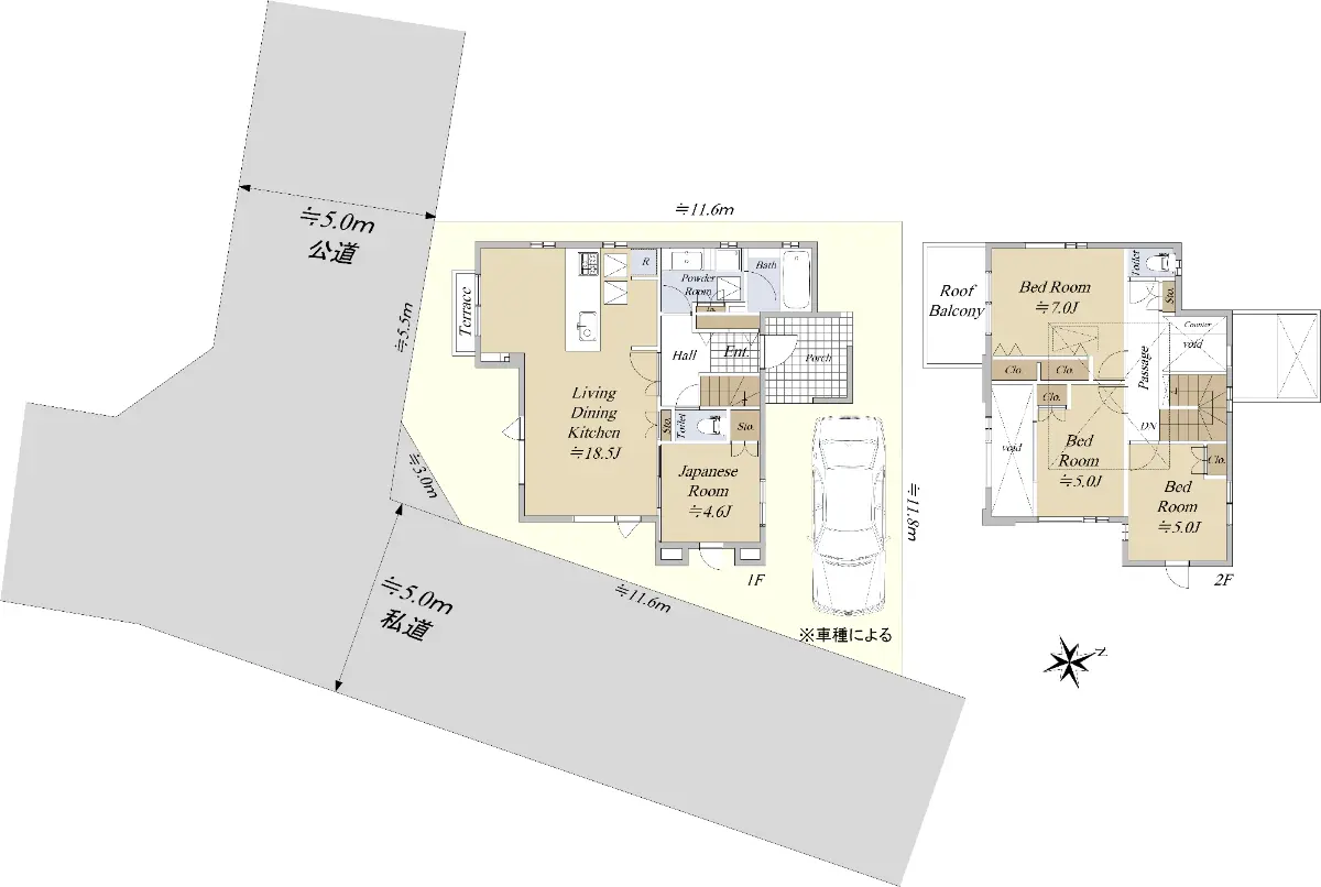
■南西・南東側(各幅員5.0m)的角地
■2×4工法にて建築されており耐震性、耐火性、断熱性、気密性が良好
■南西・南東角地的為、陽当たり・通風良好
■1階リビング横的和室は2重サッシかつピアノを置く為、床下補強を実施
■各居室に収納有、2階洋室7.0帖にはロフト有

近期網站遭惡意攻擊,基於安全考量
目前僅接受會員查詢物件詳細資料
類型 一戶建
物件編號 1086125
名稱 調布市東つつじケ丘3丁目戸建
價格 9,880万円
物件現況 居住中
管理費等 0円
修繕積立金 0円
所在地 東京都調布市東つつじケ丘3丁目
交通 京王線つつじヶ丘 (步行 10 分)
格局 4LDK
房號 --
總樓層 2階建 
屋齡 2018 年 (築 7 年)
面積 90.45㎡
約 27.36 坪
約 973.60 平方英呎
平米單價 日幣:109.23万円
台幣:22.16萬
港幣:5.66萬
坪單價 日幣:361.10万円
台幣:73.27萬
港幣:18.71萬
平方英呎 日幣:10.15万円
台幣:2.06萬
港幣:0.53萬
總戶數 1
方位 --
建築構造 木造
土地權利 所有権
用途地域 第1種低層住居専用地域
土地面積 117.19㎡
都市計畫 市街化区域
備註 この度は【調布市東つつじケ丘3丁目戸建】のページをご覧いただき、
誠にありがとうございます。

本物件は、南西・南東側(各幅員5.0m)の角地に存しており、陽が多く室内へ差し込みます。
周辺環境は、公園、コンビニやスーパーや小中学校が徒歩圏内で子育て世代に嬉しいエリアです。

物件のご検討については、一度現地を見て頂くことをお勧めします。
地形図面や写真では判断できない部分もございます。
現地をご覧頂くことで周辺環境や現地の状況等を確認頂くだけでなく、
担当者より、物件の長所・短所や購入の流れ等を詳しくご説明させて頂きます。
情報公開日 2025年10月7日
目前狀態 居住中
合約狀態 仲介
個人情報蒐集前告知
JP-Home.com 日本房屋網為上益國際有限公司經營管理,為了確保消費者之個人資料、隱私及消費者權益之保護,於交易過程中將使用消費者之個人資料,謹依個人資料保護法第 8 條規定,蒐集個人資料除用於本公司之會員管理、客戶管理之檢索查詢等功能外,本公司將利用個人電話號碼、LINE、Email 資料進行行銷,如有侵害到個人權益,請告知請求刪除會員資料。


  • 宜家國際地產(統一編號:42647425)
    本網站所刊登之不動產物件均已合法授權刊登
    本網站內容享有著作權,禁止侵害,違者必究
    Copyright © 2011 - 2025 All Rights Reserved