物件搜尋:


東京都下 西東京市(西東京市芝久保町1丁目戸建)

專家的建議


〇アグレ都市デザイン株式会社分譲戸建
〇南西・北西角地
〇令和2年10月築
〇室内大変丁寧にお使いです
〇浴室に窓有り
〇電動シャッター(1F:LDK)
〇床暖房(1F:LD部分)
〇EV車充電器
〇太陽光発電システム(蓄電池付)
〇防犯カメラ
〇2面バルコニー(南東向きルーフバルコニー、北東向きバルコニー)
〇豊富な収納(ウォークインクローゼット、シューズインクローゼット、各居室収納)

近期網站遭惡意攻擊,基於安全考量
目前僅接受會員查詢物件詳細資料
類型 一戶建
物件編號 1086127
名稱 西東京市芝久保町1丁目戸建
價格 6,800万円 > 6,480万円
物件現況 居住中
管理費等 0円
修繕積立金 0円
所在地 東京都西東京市芝久保町1丁目
交通 西武新宿線花小金井 (步行 11 分)
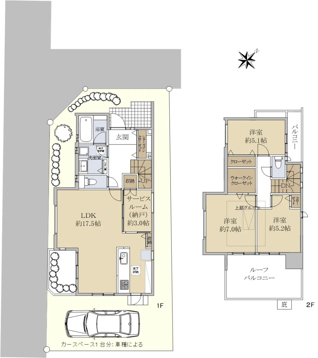
格局 3SLDK
房號 --
總樓層 2階建 
屋齡 2020 年 (築 5 年)
面積 91.51㎡
約 27.68 坪
約 985.01 平方英呎
平米單價 日幣:74.31万円
台幣:15.11萬
港幣:3.74萬
坪單價 日幣:245.65万円
台幣:49.94萬
港幣:12.35萬
平方英呎 日幣:6.90万円
台幣:1.40萬
港幣:0.35萬
總戶數 1
方位 --
建築構造 木造
土地權利 所有権
用途地域 第1種低層住居専用地域
土地面積 116.03㎡
都市計畫 市街化区域
備註 この度は「西東京市芝久保町1丁目戸建」のページをご覧いただき、誠にありがとうございます。
本物件は”令和2年10月築のアグレ都市デザイン株式会社分譲の戸建”になります。

静かな住宅街に所在する土地面積約35坪の整形地、且つ南西・北西の角地で明るく開放感がある邸宅です。
1階には陽当り良好なLDK、納戸があり、ウォークインクローゼットやシューズインクローゼット、グルニエ等の豊富な収納があるため、ゆとりが感じられます。
水回りは1階に集約されており、キッチンの南東側の勝手口からは直接駐車場に出ることができるなど家事導線を意識した間取りでございます。
設備には蓄電池付の太陽光発電システムや防犯カメラ、EV車充電器などがあります。

アクセスは西武新宿線「花小金井」駅までは徒歩11分、小中学校や保育園、スーパー、公園等が徒歩15分圏内にあるため、子育てしやすい住環境になります。

情報公開日 2025年10月7日
目前狀態 居住中
合約狀態 仲介
個人情報蒐集前告知
JP-Home.com 日本房屋網為上益國際有限公司經營管理,為了確保消費者之個人資料、隱私及消費者權益之保護,於交易過程中將使用消費者之個人資料,謹依個人資料保護法第 8 條規定,蒐集個人資料除用於本公司之會員管理、客戶管理之檢索查詢等功能外,本公司將利用個人電話號碼、LINE、Email 資料進行行銷,如有侵害到個人權益,請告知請求刪除會員資料。