物件搜尋:


東京23区 葛飾区(葛飾区西新小岩4丁目戸建)

專家的建議


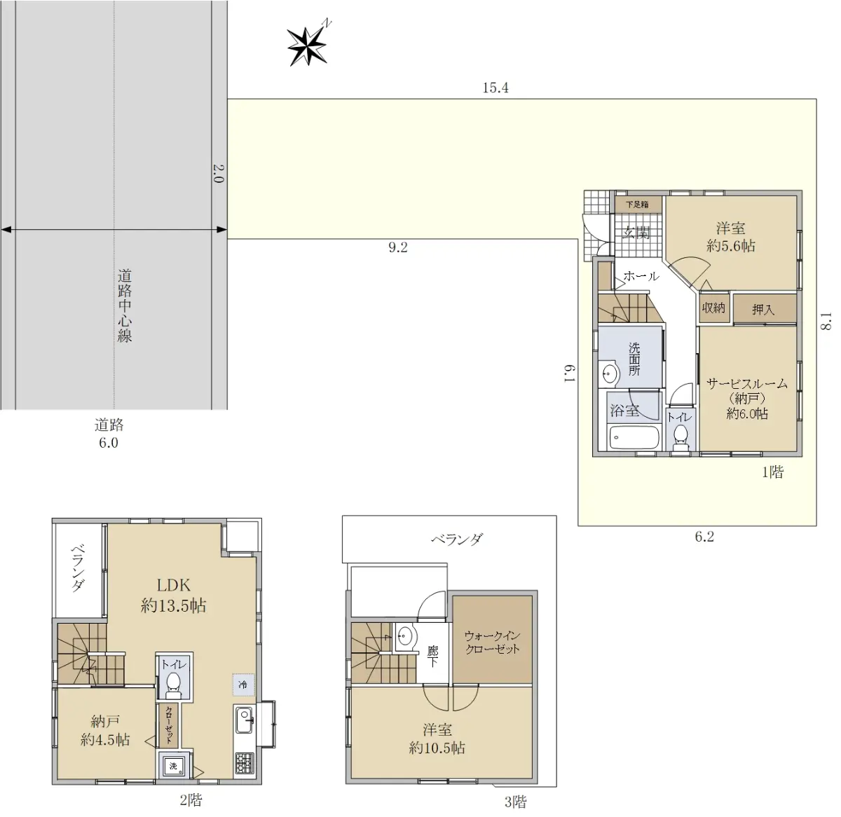
≪アクセス≫
◇JR総武・中央緩行線「新小岩」駅 徒歩15分

≪土地≫
◇面積(公簿):69.38㎡(20.98坪)
◇接道 南西側公道 幅員6m
◇カースペースあり(2台) ※車種による

≪建物≫
◇建物面積:96.37㎡
◇築年月:2000年8月
◇間取り:2SLDK

≪リフォーム内容≫2025年9月完了
◇食器洗浄乾燥機付きシステムキッチン 新規

近期網站遭惡意攻擊,基於安全考量
目前僅接受會員查詢物件詳細資料
類型 一戶建
物件編號 1086164
名稱 葛飾区西新小岩4丁目戸建
價格 4,880万円
物件現況 空家
管理費等 0円
修繕積立金 0円
所在地 東京都葛飾区西新小岩4丁目
交通 総武線新小岩 (步行 15 分)
格局 2SLDK
房號 --
總樓層 3階建 
屋齡 2000 年 (築 25 年)
面積 96.37㎡
約 29.15 坪
約 1,037.33 平方英呎
平米單價 日幣:50.64万円
台幣:10.27萬
港幣:2.62萬
坪單價 日幣:167.40万円
台幣:33.97萬
港幣:8.67萬
平方英呎 日幣:4.70万円
台幣:0.95萬
港幣:0.24萬
總戶數 1
方位 --
建築構造 木造
土地權利 所有権
用途地域 準工業地域
土地面積 69.38㎡
都市計畫 市街化区域
備註 本ページをご覧頂き誠にありがとうございます。

本物件は葛飾区西新小岩4丁目、3階建戸建です。
徒歩圏内に生活利便施設が整う立地です。
外装・内装リフォーム物件ですので、綺麗な状態でお住まいいただけます。
是非現地にてご覧ください。

詳細は、フリーコール0120-828-813(携帯電話からも通話可能)、
新小岩営業センターまでお問い合わせください。
皆様からのお問い合わせを心よりお待ち申し上げております。
情報公開日 2025年10月7日
目前狀態 空家
合約狀態 仲介
個人情報蒐集前告知
JP-Home.com 日本房屋網為上益國際有限公司經營管理,為了確保消費者之個人資料、隱私及消費者權益之保護,於交易過程中將使用消費者之個人資料,謹依個人資料保護法第 8 條規定,蒐集個人資料除用於本公司之會員管理、客戶管理之檢索查詢等功能外,本公司將利用個人電話號碼、LINE、Email 資料進行行銷,如有侵害到個人權益,請告知請求刪除會員資料。