物件搜尋:


神奈川県 横浜市旭区(横浜市旭区白根8丁目一棟ビル)

專家的建議


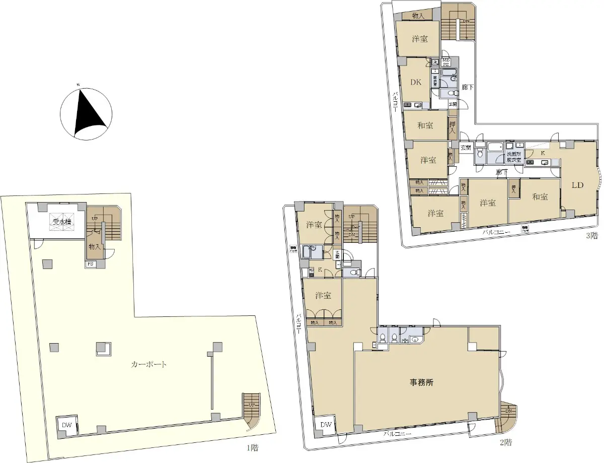
□南西側、南東側に開口部が多く明るい邸内
 南東側から南西側にわたるL字型バルコニーは日当たり良好です。
 広々バルコニーからたっぷり的光を享受出来ます。

□玄関&キッチンが3か所あり、2世帯住宅としても利用可
 2階、3階的居住スペースは玄関やキッチンなどが分かれており、
 2世帯住宅としてもご検討いただけます。
 収納スペースも豊富で、邸内がスッキリ片付きます。
 
□北東側公道約8.8mに面しており

近期網站遭惡意攻擊,基於安全考量
目前僅接受會員查詢物件詳細資料
類型 整棟大樓
物件編號 1086385
名稱 横浜市旭区白根8丁目一棟ビル
價格 12,000万円 > 9,000万円
物件現況 居住中
管理費等 0円
修繕積立金 0円
所在地 神奈川県横浜市旭区白根8丁目
交通 相鉄本線西谷 (步行 4 分)
格局 4LDK
房號 --
總樓層 3階建 
屋齡 1988 年 (築 37 年)
面積 375.13㎡
約 113.48 坪
約 4,037.90 平方英呎
平米單價 日幣:31.99万円
台幣:6.39萬
港幣:1.59萬
坪單價 日幣:105.75万円
台幣:21.11萬
港幣:5.24萬
平方英呎 日幣:2.97万円
台幣:0.59萬
港幣:0.15萬
總戶數 1
方位 --
建築構造 鉄筋コンクリート造
土地權利 所有権
用途地域 第1種住居地域
土地面積 396.00㎡
都市計畫 市街化区域
備註 ◎この度は弊社ホームページを御覧頂きまして誠に有難う御座います。
神奈川県横浜市旭区白根8丁目一棟ビルのご紹介です。



*-*-*-*-*ご自宅の『売却』もお任せください*-*-*-*-*

・『売却が先か購入が先か』買替えたいけど、何から始めたら良いのか分からない。
・所有不動産の相場を確認しておきたい。
・自宅の住宅ローンがまだ残っているので、無理のない資金計画を相談したい。
情報公開日 2025年10月10日
目前狀態 居住中
合約狀態 仲介
個人情報蒐集前告知
JP-Home.com 日本房屋網為上益國際有限公司經營管理,為了確保消費者之個人資料、隱私及消費者權益之保護,於交易過程中將使用消費者之個人資料,謹依個人資料保護法第 8 條規定,蒐集個人資料除用於本公司之會員管理、客戶管理之檢索查詢等功能外,本公司將利用個人電話號碼、LINE、Email 資料進行行銷,如有侵害到個人權益,請告知請求刪除會員資料。