物件搜尋:


神奈川県 横浜市南区(ダイアパレス蒔田)

近期網站遭惡意攻擊,基於安全考量
目前僅接受會員查詢物件詳細資料
類型 公寓
物件編號 1086594
價格 3,180万円 > 1,250万円
物件現況 出租中
管理費等 12,470円
修繕積立金 12,420円
可月出租 101,000円
投報率 7.31%
所在地 神奈川県横浜市南区共進町3丁目
交通 ブルーライン 蒔田 (步行 3 分)
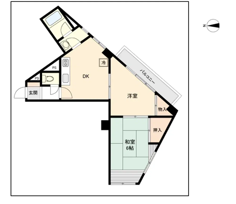
格局 2DK
房號 --
總樓層 4階部分/4階建 
屋齡 1980 年 (築 46 年)
面積 45.72㎡(内法)
約 13.83 坪
約 492.13 平方英呎
平米單價 日幣:69.55万円
台幣:14.02萬
港幣:3.47萬
坪單價 日幣:229.93万円
台幣:46.33萬
港幣:11.47萬
平方英呎 日幣:6.46万円
台幣:1.30萬
港幣:0.32萬
總戶數 33
方位 南東
建築構造 RC
土地權利 所有権
用途地域 第1種住居地域
管理形態 全部委託
管理公司 株式会社東急コミュニティー
管理人 巡回
土地面積 --
都市計畫 市街化区域
設備 電梯 / 瓦斯熱水供應器 / 公共下水 / 公営水道 / 都市瓦斯 / 東京電力 / 駅徒歩5分以内 / 専用風呂 / 淋浴設備 / 専用廁所 / 浴缸・廁所別 / 瓦斯爐 / 2階以上 / 陽台 / 外観磁磚貼り / 邊間房
情報公開日 2025年10月11日
目前狀態 賃貸中
合約狀態 仲介
個人情報蒐集前告知
JP-Home.com 日本房屋網為上益國際有限公司經營管理,為了確保消費者之個人資料、隱私及消費者權益之保護,於交易過程中將使用消費者之個人資料,謹依個人資料保護法第 8 條規定,蒐集個人資料除用於本公司之會員管理、客戶管理之檢索查詢等功能外,本公司將利用個人電話號碼、LINE、Email 資料進行行銷,如有侵害到個人權益,請告知請求刪除會員資料。