物件搜尋:


京都府 京都市西京区(京都市西京区御陵大枝山町一丁目戸建)

專家的建議


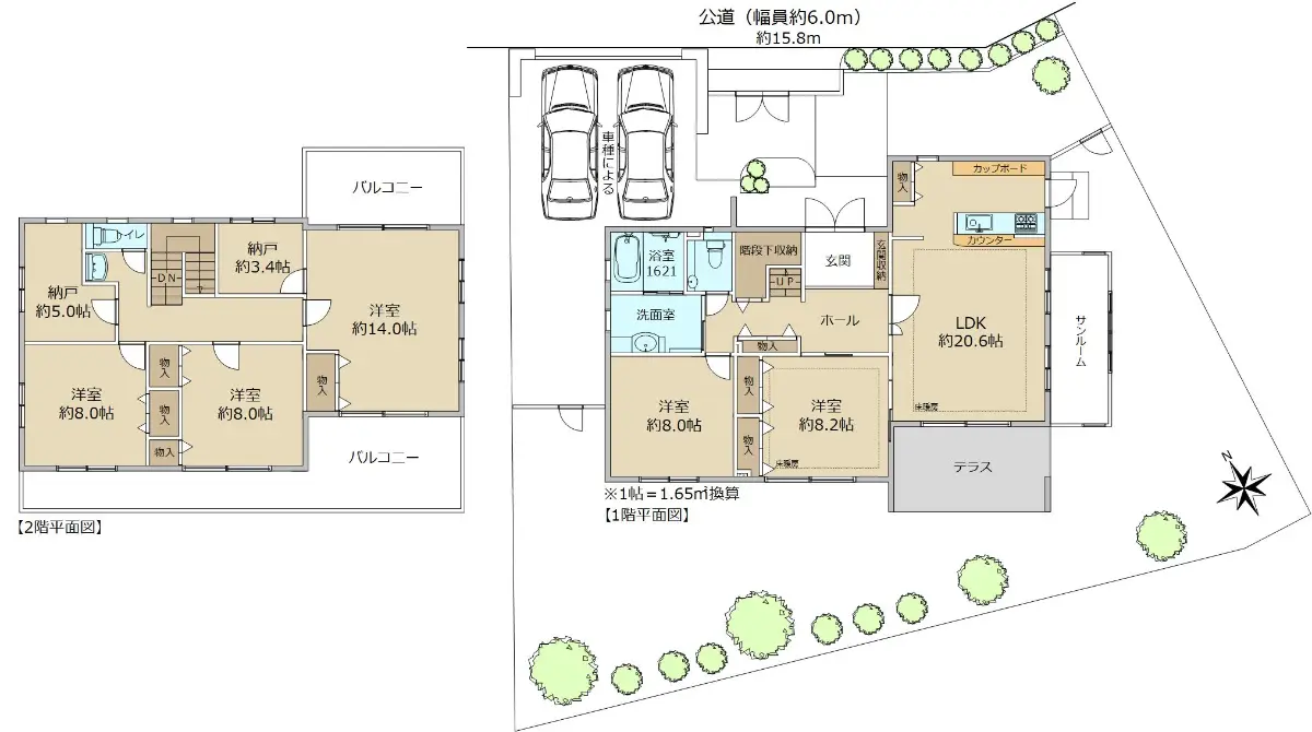
◎鉄筋コンクリート造【大成建設施工(パルコン)】
◎土地:103.59坪
◎建物:54.22坪
◎並列駐車2台可(車種による)カーポート有・電動式シャッター付
◎前面道路幅員約6.0m・公道
◎閑静な住宅地◆◇◆生活関連周辺施設◆◇◆
・デイリーカナートイズミヤ桂坂店まで約830m
・ドラッグユタカ桂坂店まで約970m
・ファミリーマート西京桂坂店まで約1000m
・京都桂坂郵便局まで約790m

近期網站遭惡意攻擊,基於安全考量
目前僅接受會員查詢物件詳細資料
類型 一戶建
物件編號 1086673
名稱 京都市西京区御陵大枝山町一丁目戸建
價格 8,900万円
物件現況 空家
管理費等 0円
修繕積立金 0円
所在地 京都府京都市西京区御陵大枝山町1丁目
交通 阪急京都線桂 (步行 12 分)
格局 5SLDK
房號 --
總樓層 2階建 
屋齡 2003 年 (築 22 年)
面積 179.27㎡
約 54.23 坪
約 1,929.66 平方英呎
平米單價 日幣:49.65万円
台幣:9.94萬
港幣:2.53萬
坪單價 日幣:164.12万円
台幣:32.87萬
港幣:8.37萬
平方英呎 日幣:4.61万円
台幣:0.92萬
港幣:0.24萬
總戶數 1
方位 --
建築構造 鉄筋コンクリート造
土地權利 所有権
用途地域 第1種低層住居専用地域
土地面積 342.46㎡
都市計畫 市街化区域
備註 桂坂は金融機関や買物施設、教育施設、生活関連施設が分譲地内にございます。
桂坂の町並みは、区画の整った緑豊かな町並みです。
散策をしてみると、桂坂に住まう喜びを感じていただけるかと思います。

【桂坂】は、担当/ミヨシがご案内いたします。

物件に関するお問合せやご質問等は、担当のミヨシまでお申し付けください。
お待ちしております!

住友不動産ステップ株式会社 桂営業センター
情報公開日 2025年10月11日
目前狀態 空家
合約狀態 仲介
個人情報蒐集前告知
JP-Home.com 日本房屋網為上益國際有限公司經營管理,為了確保消費者之個人資料、隱私及消費者權益之保護,於交易過程中將使用消費者之個人資料,謹依個人資料保護法第 8 條規定,蒐集個人資料除用於本公司之會員管理、客戶管理之檢索查詢等功能外,本公司將利用個人電話號碼、LINE、Email 資料進行行銷,如有侵害到個人權益,請告知請求刪除會員資料。