物件搜尋:


千葉県 千葉市美浜区(検見川パークマンション)

專家的建議


〇JR京葉線「検見川浜」駅 徒歩9分
〇南向きにつき、日当たり良好
〇専有面積/94.92㎡
〇オートロック
〇モニター付きインターホン《 Access 》

〇 JR京葉線「検見川浜」駅 徒歩9分

《Life information》
〇 セブンイレブン千葉真砂店 約590m
〇 クリエイトサンドラッグ美浜真砂店 約190m
〇 真砂第2公園 約30m
〇 千葉市立真砂東小

近期網站遭惡意攻擊,基於安全考量
目前僅接受會員查詢物件詳細資料
類型 大樓
物件編號 1087285
名稱 検見川パークマンション
價格 1,680万円 > 1,630万円
物件現況 居住中
管理費等 17,140円
修繕積立金 25,950円
所在地 千葉県千葉市美浜区真砂3丁目
交通 京葉線検見川浜 (步行 9 分)
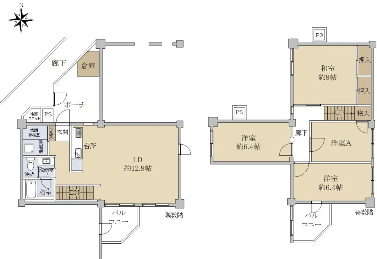
格局 4LDK
房號 --
總樓層 4階部分/14階建 
屋齡 1975 年 (築 51 年)
面積 94.92㎡
約 28.71 坪
約 1,021.72 平方英呎
陽台 9m²
約 2.72 坪
約 96.88 平方英呎
平米單價 日幣:17.70万円
台幣:3.56萬
港幣:0.88萬
坪單價 日幣:58.51万円
台幣:11.75萬
港幣:2.90萬
平方英呎 日幣:1.64万円
台幣:0.33萬
港幣:0.08萬
總戶數 62
方位
建築構造 鉄骨鉄筋コンクリート造
土地權利 所有権
用途地域 -
管理形態 全部委託
管理公司 三井不動産レジデンシャルサービス
管理人 日勤
土地面積 -
都市計畫 -
備註 ***不動産の購入を検討中のお客様へ****
物件探しの基本は「物件を実際に見て頂くこと」にあります。
写真や図面だけではなく、実際に現地を見て頂く事をお勧めいたします。
現地を見て頂くことで、周辺環境や物件の状態が明確にご理解頂けるとともに、
プロの目から見た物件の長所・短所、購入の際の注意点を詳しくご説明させて頂きます。
こちらの物件にご興味をお持ちのお客様は是非ともお問い合わせください。
心よりお待ちしております。
情報公開日 2025年10月14日
目前狀態 居住中
合約狀態 仲介
個人情報蒐集前告知
JP-Home.com 日本房屋網為上益國際有限公司經營管理,為了確保消費者之個人資料、隱私及消費者權益之保護,於交易過程中將使用消費者之個人資料,謹依個人資料保護法第 8 條規定,蒐集個人資料除用於本公司之會員管理、客戶管理之檢索查詢等功能外,本公司將利用個人電話號碼、LINE、Email 資料進行行銷,如有侵害到個人權益,請告知請求刪除會員資料。