物件搜尋:


東京23区 練馬区(練馬区田柄4丁目戸建)

專家的建議


◆3路線2駅利用可
東武東上線『下赤塚』駅 徒歩14分
東京メトロ有楽町・副都心線『地下鉄赤塚』駅 徒歩14分
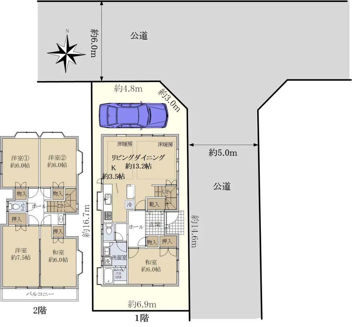
◆敷地面積:114.53㎡(34.64坪)
◆延床面積:114.27㎡(34.56坪)
◆北東角地
◆各居室6帖以上
◆カースペース1台有(※車種による)
 ~ライフインフォメーション
・練馬区立田柄小学校・・・約650m
・練馬区立田柄中学校・・・約430m
・まいばすけっと

近期網站遭惡意攻擊,基於安全考量
目前僅接受會員查詢物件詳細資料
類型 一戶建
物件編號 1088095
名稱 練馬区田柄4丁目戸建
價格 9,800万円 > 9,480万円
物件現況 居住中
管理費等 0円
修繕積立金 0円
所在地 東京都練馬区田柄4丁目
交通 東京メトロ副都心線地下鉄赤塚 (步行 14 分)
格局 5LDK
房號 --
總樓層 2階建 
屋齡 1994 年 (築 32 年)
面積 114.27㎡
約 34.57 坪
約 1,230.00 平方英呎
平米單價 日幣:85.76万円
台幣:17.23萬
港幣:4.25萬
坪單價 日幣:283.51万円
台幣:56.95萬
港幣:14.04萬
平方英呎 日幣:7.97万円
台幣:1.60萬
港幣:0.39萬
總戶數 1
方位 --
建築構造 木造
土地權利 所有権
用途地域 第1種低層住居専用地域
土地面積 114.53㎡
都市計畫 市街化区域
備註 このたびは「練馬区田柄4丁目戸建」のページをご覧いただき、誠にありがとうございます。

本物件は、東武東上線『下赤塚』駅まで徒歩14分、東京メトロ有楽町・副都心線『地下鉄赤塚』駅まで徒歩14分の立地にあり、北東角地、平成6年4月築ナミキ不動産施工の注文住宅になります。

建物については、5LDKの間取りで、約13.2帖のリビングダイニングがあり、床暖房が設置されております。居室部分は全て6帖以上あり、収納もあります。

小学校と中学校は徒歩10分以内にあり、公園は徒歩5分以内にあって住環境良好です。

当物件にご興味のある方は、一度ご内見いただき、ご検討いただければ幸いです。
皆様からのお問合わせを心よりお待ちしております。
情報公開日 2025年10月19日
目前狀態 居住中
合約狀態 仲介
個人情報蒐集前告知
JP-Home.com 日本房屋網為上益國際有限公司經營管理,為了確保消費者之個人資料、隱私及消費者權益之保護,於交易過程中將使用消費者之個人資料,謹依個人資料保護法第 8 條規定,蒐集個人資料除用於本公司之會員管理、客戶管理之檢索查詢等功能外,本公司將利用個人電話號碼、LINE、Email 資料進行行銷,如有侵害到個人權益,請告知請求刪除會員資料。