物件搜尋:


東京23区 板橋区(板橋区板橋2丁目シェアハウス)

專家的建議


■現況全部賃貸中(2025年10月18日時点)
・現況賃料:615,500円/月額
・表面利回り:約10.55%

※賃料収入や利回りは将来にわたって確実に得られることを保証するも的ではありません。
※賃料は賃貸中的も的については現在的賃料で、新築及び、空室中や一部空き有り的も的については周辺マーケット賃料水準や募集賃料等に基づき満室となった場合を想定して表示しています。
※利回りは現況または満室想定時で的単純利回り(共益費等を含む年間

近期網站遭惡意攻擊,基於安全考量
目前僅接受會員查詢物件詳細資料
類型 一戶建
物件編號 1088104
名稱 板橋区板橋2丁目シェアハウス
價格 7,000万円
物件現況 出租中
管理費等 0円
修繕積立金 0円
可月出租 615,500円
投報率 10.55%
所在地 東京都板橋区板橋2丁目
交通 東武東上線下板橋 (步行 5 分)
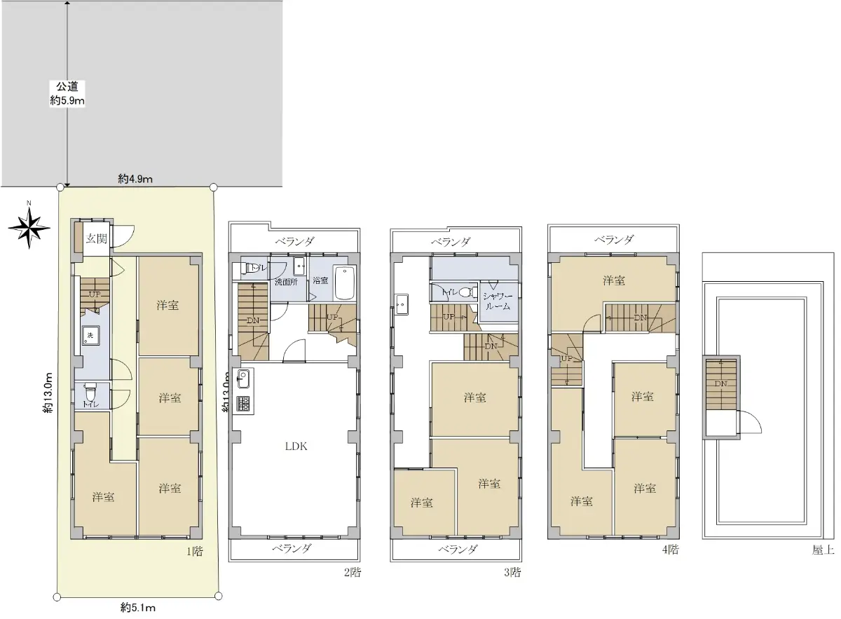
格局 1K
房號 --
總樓層 4階建 
屋齡 1982 年 (築 44 年)
面積 182.40㎡
約 55.18 坪
約 1,963.35 平方英呎
平米單價 日幣:38.38万円
台幣:7.66萬
港幣:1.89萬
坪單價 日幣:126.87万円
台幣:25.32萬
港幣:6.26萬
平方英呎 日幣:3.57万円
台幣:0.71萬
港幣:0.18萬
總戶數 1
方位 --
建築構造 鉄骨造
土地權利 所有権
用途地域 近隣商業地域
土地面積 65.09㎡
都市計畫 市街化区域
備註 本物件は3路線3駅利用可能、表面利回り:約10.5%のシェアハウスです。

生活利便性の高さも魅力な物件です。
周辺には、ヨークマート下板橋店(徒歩4分)、ローソン板橋二丁目店(徒歩2分)、ウエルシア板橋下板橋店(徒歩4分)などがございます。

「板橋区板橋2丁目シェアハウス」に関するご内覧希望やご質問等は、担当の「西野(ニシノ)」までお気軽にお申しつけください。
資金計画のご提案やローンの審査のお手伝い等、全力でご購入のサポートをさせていただきます。
是非ご検討くださいませ。
情報公開日 2025年10月19日
目前狀態 賃貸中
合約狀態 仲介
個人情報蒐集前告知
JP-Home.com 日本房屋網為上益國際有限公司經營管理,為了確保消費者之個人資料、隱私及消費者權益之保護,於交易過程中將使用消費者之個人資料,謹依個人資料保護法第 8 條規定,蒐集個人資料除用於本公司之會員管理、客戶管理之檢索查詢等功能外,本公司將利用個人電話號碼、LINE、Email 資料進行行銷,如有侵害到個人權益,請告知請求刪除會員資料。