物件搜尋:


東京23区 練馬区(練馬区豊玉上1丁目賃貸併用住宅)

專家的建議


~アクセス~
・西武池袋線「江古田」駅 徒歩5分
・都営大江戸線「新江古田」駅 徒歩5分

~ポイント~
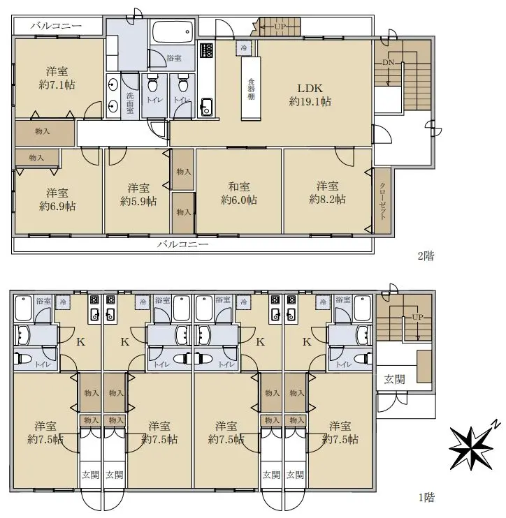
・土地面積:269.45㎡(81.50坪)
・平成10年3月築 鉄筋コンクリート造
・東側 幅員約6.0m公道
・1階:1K×4部屋 2階:5LDK
・屋上バルコニー
・カーポート

~一部賃貸中~
満室想定賃料:575,000円(月額) 6,900,000円(年

近期網站遭惡意攻擊,基於安全考量
目前僅接受會員查詢物件詳細資料
類型 整棟公寓
物件編號 1088125
名稱 練馬区豊玉上1丁目賃貸併用住宅
價格 20,000万円
物件現況 出租中
管理費等 0円
修繕積立金 0円
可月出租 575,000円
投報率 3.45%
所在地 東京都練馬区豊玉上1丁目
交通 西武池袋・豊島線江古田 (步行 5 分)
格局 1K
房號 --
總樓層 2階建 
屋齡 1998 年 (築 28 年)
面積 259.00㎡
約 78.35 坪
約 2,787.88 平方英呎
平米單價 日幣:77.22万円
台幣:15.41萬
港幣:3.81萬
坪單價 日幣:255.27万円
台幣:50.95萬
港幣:12.59萬
平方英呎 日幣:7.17万円
台幣:1.43萬
港幣:0.35萬
總戶數 5
方位 --
建築構造 鉄筋コンクリート造
土地權利 所有権
用途地域 第1種中高層住居専用地域
土地面積 269.45㎡
都市計畫 市街化区域
備註 物件詳細ページをご覧頂きまして誠にありがとうございます。

江古田駅、新江古田駅から徒歩5分の利便性の高い立地です。

物件に関するご質問、資料請求などございましたらお気軽にお問い合わせください。
情報公開日 2025年10月20日
目前狀態 賃貸中
合約狀態 仲介
個人情報蒐集前告知
JP-Home.com 日本房屋網為上益國際有限公司經營管理,為了確保消費者之個人資料、隱私及消費者權益之保護,於交易過程中將使用消費者之個人資料,謹依個人資料保護法第 8 條規定,蒐集個人資料除用於本公司之會員管理、客戶管理之檢索查詢等功能外,本公司將利用個人電話號碼、LINE、Email 資料進行行銷,如有侵害到個人權益,請告知請求刪除會員資料。