物件搜尋:


東京23区 足立区(足立区舎人4丁目戸建)

專家的建議


╋┓ アクセス
┗╋━━━━━━━━━ 
 ▼日暮里舎人ライナー「見沼代親水公園」駅徒歩7分

╋┓ セールスポイント
┗╋━━━━━━━━━
 ▼駅徒歩7分
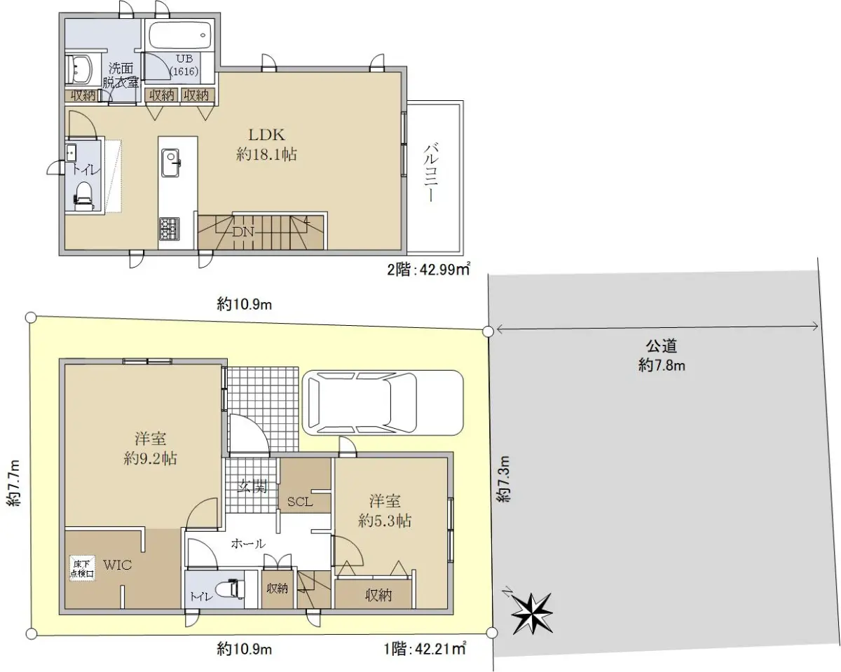
 ▼土地面積:82.51㎡
 ▼建物面積:85.20㎡
 ▼間取り:2LDK
 ▼2023年(令和5年)6月築
 ▼カースペース1台分(車種による)
 ▼EV車充電設備
 ▼24時間換気システム
 ▼

近期網站遭惡意攻擊,基於安全考量
目前僅接受會員查詢物件詳細資料
類型 一戶建
物件編號 1088154
名稱 足立区舎人4丁目戸建
價格 5,780万円 > 5,480万円
物件現況 居住中
管理費等 0円
修繕積立金 0円
所在地 東京都足立区舎人4丁目
交通 日暮里舎人ライナー見沼代親水公園 (步行 7 分)
格局 2LDK
房號 --
總樓層 2階建 
屋齡 2023 年 (築 3 年)
面積 85.20㎡
約 25.77 坪
約 917.09 平方英呎
平米單價 日幣:67.84万円
台幣:13.67萬
港幣:3.36萬
坪單價 日幣:224.27万円
台幣:45.20萬
港幣:11.12萬
平方英呎 日幣:6.30万円
台幣:1.27萬
港幣:0.31萬
總戶數 1
方位 --
建築構造 木造
土地權利 所有権
用途地域 第1種低層住居専用地域
土地面積 82.51㎡
都市計畫 市街化区域
備註 このたびは「足立区舎人4丁目戸建」のページをご覧いただきありがとうございます。

本物件は、日暮里舎人ライナー「見沼代親水公園」駅徒歩7分、2023年(令和5年)6月築の木造2階建ての戸建です。

徒歩10分圏内には、生活利便施設が多数存しております。

南東側公道幅員約7.8mに面しており、カースペースが1台分ございます。(車種による。)

土地面積:82.51㎡/建物面積:85.20㎡(1階:42.21㎡/2階:42.99㎡)2LDKの間取りです。

情報公開日 2025年10月20日
目前狀態 居住中
合約狀態 仲介
個人情報蒐集前告知
JP-Home.com 日本房屋網為上益國際有限公司經營管理,為了確保消費者之個人資料、隱私及消費者權益之保護,於交易過程中將使用消費者之個人資料,謹依個人資料保護法第 8 條規定,蒐集個人資料除用於本公司之會員管理、客戶管理之檢索查詢等功能外,本公司將利用個人電話號碼、LINE、Email 資料進行行銷,如有侵害到個人權益,請告知請求刪除會員資料。