物件搜尋:


東京23区 江戸川区(江戸川区江戸川3丁目戸建)

專家的建議


≪アクセス≫
◇都営新宿線「一之江」駅徒歩12分
◇都営新宿線「瑞江」駅徒歩16分

≪物件概要≫
■土地面積(公簿):179.25㎡
■建物面積(公簿):192.01㎡(1階104.24㎡ 2階87.77㎡)
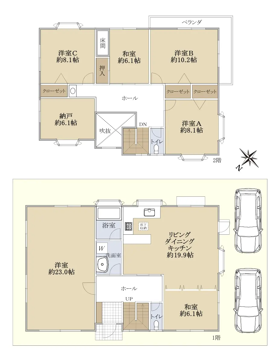
■間取り:6SLDK
(LDK約19.9帖/1階洋室約23.0帖/ 1階和室約6.1帖/2階北側洋室約8.1帖/2階南西側洋室約10.2帖/2階南東側洋室約8.1帖/2階和室約6.1帖/2階納戸約6.1帖)<

近期網站遭惡意攻擊,基於安全考量
目前僅接受會員查詢物件詳細資料
類型 一戶建
物件編號 1088394
名稱 江戸川区江戸川3丁目戸建
價格 14,880万円 > 12,680万円
物件現況 居住中
管理費等 0円
修繕積立金 0円
所在地 東京都江戸川区江戸川3丁目
交通 都営新宿線一之江 (步行 12 分)
格局 6SLDK
房號 --
總樓層 2階建 
屋齡 1994 年 (築 32 年)
面積 192.01㎡
約 58.08 坪
約 2,066.80 平方英呎
平米單價 日幣:77.50万円
台幣:15.47萬
港幣:3.82萬
坪單價 日幣:256.19万円
台幣:51.13萬
港幣:12.63萬
平方英呎 日幣:7.20万円
台幣:1.44萬
港幣:0.36萬
總戶數 1
方位 --
建築構造 木造
土地權利 所有権
用途地域 第1種住居地域
土地面積 179.25㎡
都市計畫 市街化区域
備註 この度は【江戸川区江戸川3丁目戸建】詳細ページをご覧いただきありがとうございます。
本物件は1994年11月築・6SLDKの注文住宅です。
LDKは18帖以上、約23.0帖の洋室含む各居室6.0帖以上の広さがございます。
また、室内を丁寧にお使いのため、室内保守状況良好です。

現地や周辺環境のご案内・資料請求等随時承ります。
物件に関するご質問・ご不明点等ございましたら
フリーコール0120-523-557(携帯電話からも通話可能)
西葛西営業センター【担当:藤井・久恒(ひさつね)】までお気軽にご連絡下さい。
情報公開日 2025年10月21日
目前狀態 居住中
合約狀態 仲介
個人情報蒐集前告知
JP-Home.com 日本房屋網為上益國際有限公司經營管理,為了確保消費者之個人資料、隱私及消費者權益之保護,於交易過程中將使用消費者之個人資料,謹依個人資料保護法第 8 條規定,蒐集個人資料除用於本公司之會員管理、客戶管理之檢索查詢等功能外,本公司將利用個人電話號碼、LINE、Email 資料進行行銷,如有侵害到個人權益,請告知請求刪除會員資料。