物件搜尋:


東京都下 町田市(町田市三輪緑山4丁目戸建)

專家的建議


■交通:小田急線「鶴川」駅まで徒歩21分
    バス停「ゆり的木通り」徒歩5分、小田急線「鶴川」駅までバス乗車7分
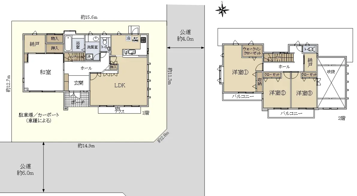
■敷地面積:207.43㎡(62.74坪)
■建物面積:147.86㎡(44.72坪)
■築年月:1998年7月
■角地
■駐車場/カーポート(車種による)
■設備・仕様
・ウォークインクローゼット
・床暖房(LD)
・浄水器一体型水栓
・食器洗浄乾燥機
・シャ

近期網站遭惡意攻擊,基於安全考量
目前僅接受會員查詢物件詳細資料
類型 一戶建
物件編號 1088594
名稱 町田市三輪緑山4丁目戸建
價格 4,480万円
物件現況 居住中
管理費等 0円
修繕積立金 0円
所在地 東京都町田市三輪緑山4丁目
交通 小田急小田原線鶴川 (步行 21 分)
格局 4LDK
房號 --
總樓層 2階建 
屋齡 1998 年 (築 27 年)
面積 147.86㎡
約 44.73 坪
約 1,591.57 平方英呎
平米單價 日幣:30.30万円
台幣:6.05萬
港幣:1.53萬
坪單價 日幣:100.16万円
台幣:19.99萬
港幣:5.06萬
平方英呎 日幣:2.81万円
台幣:0.56萬
港幣:0.14萬
總戶數 1
方位 --
建築構造 木造
土地權利 所有権
用途地域 第1種低層住居専用地域
土地面積 207.43㎡
都市計畫 市街化区域
備註 -不動産の購入を検討中のお客様へ-
簡単な資料だけご覧になりたいという方もお気軽にお問い合わせください。

物件のご検討については、写真や図面だけではなく、現地を見ていただく事をお勧めします。
現地をご覧頂くことにより周辺環境や室内の状況等を確認いただくだけでなく、
ご案内する担当者より、プロの目から見た長所・短所等を詳しくご説明差し上げる事もできます。

また、住宅ローン等でご不明な点があれば、物件購入にかかる諸費用や住宅ローンを組まれたときの月々のご返済をご案内させていただきます。

ご検討の際にはフリーコール【0120-331-038】担当の早坂まで
情報公開日 2025年10月24日
目前狀態 居住中
合約狀態 仲介
個人情報蒐集前告知
JP-Home.com 日本房屋網為上益國際有限公司經營管理,為了確保消費者之個人資料、隱私及消費者權益之保護,於交易過程中將使用消費者之個人資料,謹依個人資料保護法第 8 條規定,蒐集個人資料除用於本公司之會員管理、客戶管理之檢索查詢等功能外,本公司將利用個人電話號碼、LINE、Email 資料進行行銷,如有侵害到個人權益,請告知請求刪除會員資料。