物件搜尋:


東京23区 練馬区(練馬区豊玉中2丁目戸建)

專家的建議


~物件詳細~
◆西武池袋線「練馬」駅 徒歩12分
◆平成14年9月築
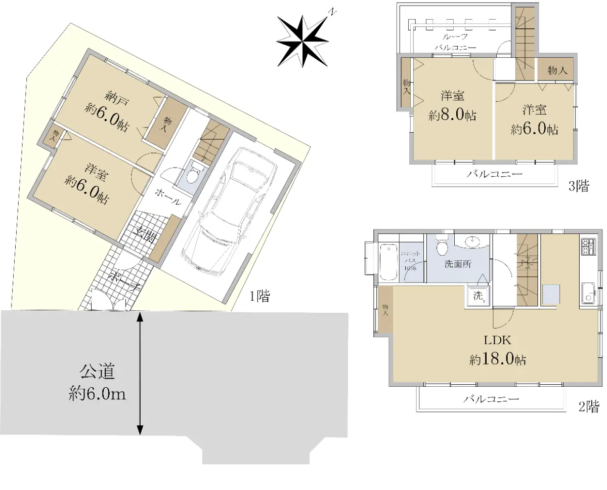
◆土地面積:76.98㎡
◆床面積:1F 31.32㎡ 2F 43.47㎡ 3F 28.62㎡
◆延床面積:100㎡以上
◆第1種中高層住居専用地域
◆建ぺい率:60%
◆容積率:200%
◆前面道路幅員約6.0m
◆公道
◆南東向き
◆全居室二面採光
◆3F両面バルコニー
◆全居室収納有

近期網站遭惡意攻擊,基於安全考量
目前僅接受會員查詢物件詳細資料
類型 一戶建
物件編號 1088834
名稱 練馬区豊玉中2丁目戸建
價格 6,980万円
物件現況 居住中
管理費等 0円
修繕積立金 0円
所在地 東京都練馬区豊玉中2丁目
交通 西武池袋・豊島線練馬 (步行 12 分)
格局 3SLDK
房號 --
總樓層 3階建 
屋齡 2002 年 (築 23 年)
面積 103.41㎡
約 31.28 坪
約 1,113.11 平方英呎
平米單價 日幣:67.50万円
台幣:13.47萬
港幣:3.41萬
坪單價 日幣:223.13万円
台幣:44.54萬
港幣:11.27萬
平方英呎 日幣:6.27万円
台幣:1.25萬
港幣:0.32萬
總戶數 1
方位 --
建築構造 木造
土地權利 所有権
用途地域 第1種中高層住居専用地域
土地面積 76.98㎡
都市計畫 市街化区域
備註 この度は『練馬区豊玉中2丁目戸建』をご覧いただきありがとうございます。

物件担当の【岩崎(いわさき)】と申します。
本物件は平成14年に建てられた3階建の3SLDK戸建となっております。
周辺にスーパー、コンビ二、ガソリンスタンド等生活環境が揃っており、西武池袋線「練馬」駅徒歩12分とアクセスも良好な物件となっております。
また弊社で部分リフォーム、リフォームのご相談も可能ですのでお気軽にお問合せください。


本物件につきまして、ご質問、内見等お気軽にご連絡お待ちしております。

情報公開日 2025年10月25日
目前狀態 居住中
合約狀態 仲介
個人情報蒐集前告知
JP-Home.com 日本房屋網為上益國際有限公司經營管理,為了確保消費者之個人資料、隱私及消費者權益之保護,於交易過程中將使用消費者之個人資料,謹依個人資料保護法第 8 條規定,蒐集個人資料除用於本公司之會員管理、客戶管理之檢索查詢等功能外,本公司將利用個人電話號碼、LINE、Email 資料進行行銷,如有侵害到個人權益,請告知請求刪除會員資料。