物件搜尋:


東京23区 世田谷区(世田谷区祖師谷5丁目戸建)

專家的建議


▼ACCESS
- 小田急小田原線準急停車駅「祖師ヶ谷大蔵」駅 徒歩14分
- 小田急線「祖師ヶ谷大蔵」駅バス4分 「祖師谷五丁目南」バス停 徒歩3分 

▼概要
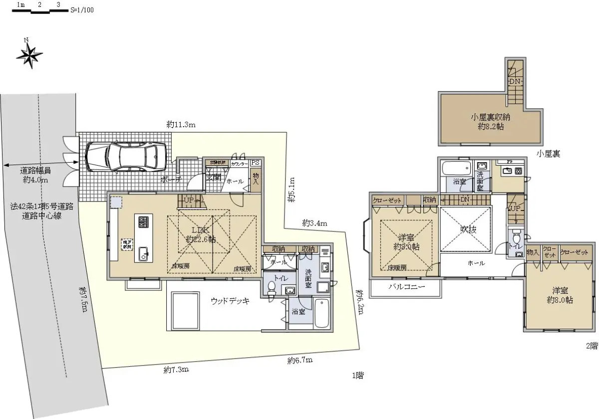
【 土地(所有権) 】
・土地面積(公簿):155.60㎡(47.06坪)
・接道状況:西側私道約4.0m、接道間口12.5m

【 建物 】
- 建物面積(公簿):110.91㎡(33.55坪)
(床面積1F:57.32㎡、

近期網站遭惡意攻擊,基於安全考量
目前僅接受會員查詢物件詳細資料
類型 一戶建
物件編號 1088986
名稱 世田谷区祖師谷5丁目戸建
價格 13,700万円
物件現況 空家
管理費等 0円
修繕積立金 0円
所在地 東京都世田谷区祖師谷5丁目
交通 小田急小田原線祖師ヶ谷大蔵 (步行 14 分)
格局 2LDK
房號 --
總樓層 2階建 
屋齡 2017 年 (築 8 年)
面積 110.91㎡
約 33.55 坪
約 1,193.84 平方英呎
平米單價 日幣:123.52万円
台幣:24.66萬
港幣:6.24萬
坪單價 日幣:408.34万円
台幣:81.51萬
港幣:20.63萬
平方英呎 日幣:11.48万円
台幣:2.29萬
港幣:0.58萬
總戶數 1
方位 --
建築構造 木造
土地權利 所有権
用途地域 第1種低層住居専用地域
土地面積 155.60㎡
都市計畫 市街化区域
備註 【世田谷区祖師谷5丁目戸建】のページにアクセスいただき、誠にありがとうございます。

本物件は、小田急小田原線準急停車駅「祖師ヶ谷大蔵」駅を最寄りとする閑静な住宅街に立地しております。
コンビニやスーパー、小学校等が徒歩10分圏内にあり、また、小田急小田原線「祖師ヶ谷大蔵」駅まで徒歩14分でアクセスすることができる日常生活の利便性が高い物件となっております。

また、小田急バス株式会社により運行される、小田急線祖師ヶ谷大蔵駅から祖師谷商店街(ウルトラマン商店街)本物件より約1100m、砧総合支所(成城学園前駅入口:本物件より1700m)を循環するせたがやくるりん(バス)(本物件より約1700m)を利用することで、乗車時間4分、バス停迄徒歩3分にて本物件へアクセスが可能です。用途によって使い分けができることも嬉しいポイントです。

お住み替えスケジュールや資金計画、及びリフォームのご相談等も随時承っております。
現況空室のため、お客様のご都合に併せて、ご確認いただくことが可能です。

情報公開日 2025年10月26日
目前狀態 空家
合約狀態 仲介
個人情報蒐集前告知
JP-Home.com 日本房屋網為上益國際有限公司經營管理,為了確保消費者之個人資料、隱私及消費者權益之保護,於交易過程中將使用消費者之個人資料,謹依個人資料保護法第 8 條規定,蒐集個人資料除用於本公司之會員管理、客戶管理之檢索查詢等功能外,本公司將利用個人電話號碼、LINE、Email 資料進行行銷,如有侵害到個人權益,請告知請求刪除會員資料。