物件搜尋:


京都府 京都市上京区(上京区禅昌院町 2世帯住宅向き戸建)

專家的建議


【物件概要】
・へーベルハウス施工的2世帯住宅
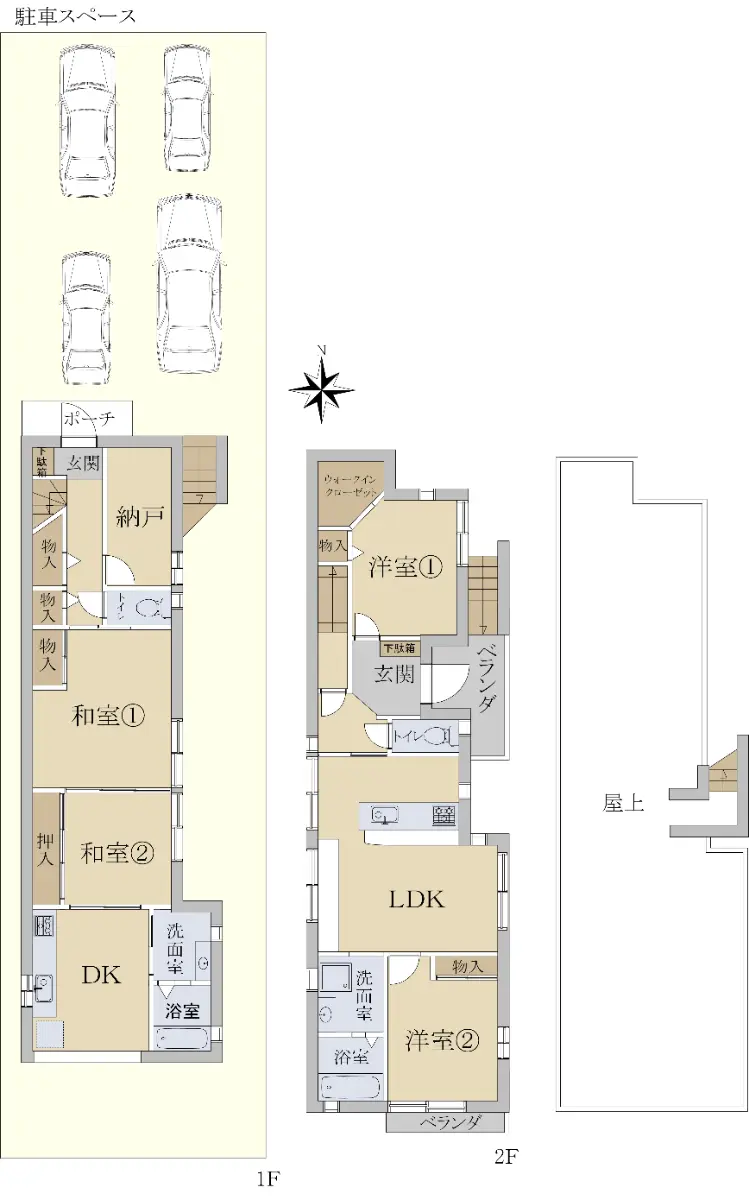
・間取り:2LDK+2SDK
・現在空家
・駐車場4台あり(車種による)
・屋上より五山的送り火【大文字】を望む(天候による)
・2025年7月室内リフォーム済み
【リフォーム内容】
1階
・全室クロス張替 ・襖、障子、網戸張替
・CF張替(トイレ、洗面所) 

2階
・クロス張替(LDK、洋室2室、洗面所) ・CF張替

近期網站遭惡意攻擊,基於安全考量
目前僅接受會員查詢物件詳細資料
類型 一戶建
物件編號 1089196
名稱 上京区禅昌院町 2世帯住宅向き戸建
價格 7,750万円
物件現況 空家
管理費等 0円
修繕積立金 0円
所在地 京都府京都市上京区小川通寺之内上る2丁目禅昌院町
交通 京都市烏丸線鞍馬口 (步行 9 分)
格局 4SLDK
房號 --
總樓層 2階建 
屋齡 1995 年 (築 30 年)
面積 126.30㎡
約 38.21 坪
約 1,359.49 平方英呎
平米單價 日幣:61.36万円
台幣:12.25萬
港幣:3.10萬
坪單價 日幣:202.85万円
台幣:40.49萬
港幣:10.25萬
平方英呎 日幣:5.70万円
台幣:1.14萬
港幣:0.29萬
總戶數 1
方位 --
建築構造 軽量鉄骨
土地權利 所有権
用途地域 第1種住居地域
土地面積 170.22㎡
都市計畫 市街化区域
備註 この度は弊社HPをご覧いただきましてありがとうございます。

本物件は地下鉄烏丸線「鞍馬口」駅まで徒歩9分の立地にございますへーベルハウス施工の2世帯住宅です。
駐車場は4台駐車可能(車種による)、1階、2階それぞれに玄関があり屋上からは五山の送り火の大文字を望みます(天候による)。
室内は2025年7月にリフォーム済みでして現在空家なので内覧も可能でございます。
まずは一度ご内覧をご検討下さいませ。

物件への質問、内覧のご希望は担当:長畑(ながはた)までお気軽にお申し付けください。
フリーコール:0120-566-022
皆様からのお問い合わせを心よりお待ちしております。
情報公開日 2025年10月27日
目前狀態 空家
合約狀態 仲介
個人情報蒐集前告知
JP-Home.com 日本房屋網為上益國際有限公司經營管理,為了確保消費者之個人資料、隱私及消費者權益之保護,於交易過程中將使用消費者之個人資料,謹依個人資料保護法第 8 條規定,蒐集個人資料除用於本公司之會員管理、客戶管理之檢索查詢等功能外,本公司將利用個人電話號碼、LINE、Email 資料進行行銷,如有侵害到個人權益,請告知請求刪除會員資料。