物件搜尋:


東京都下 調布市(調布市染地2丁目戸建)

專家的建議


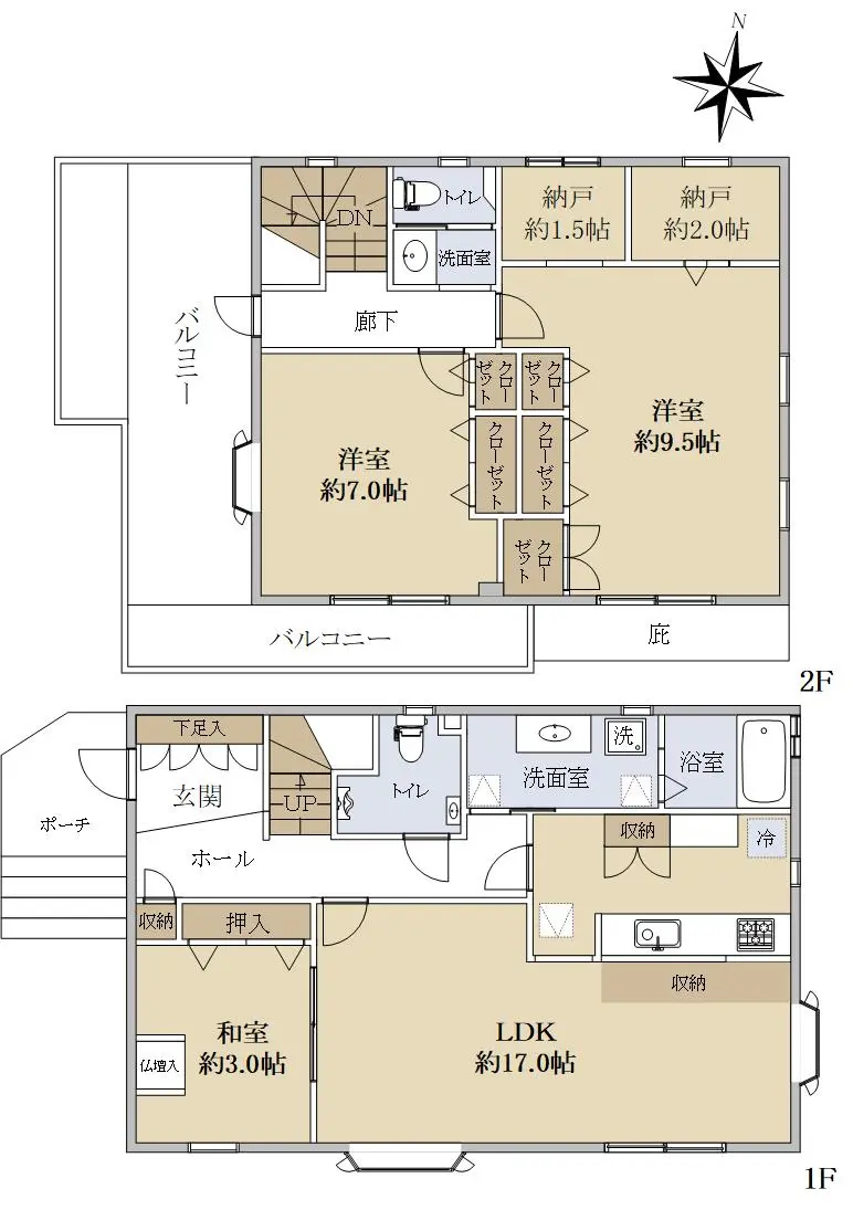
■物件概要

・土地面積:169.65㎡

・建物面積:110.81㎡

・建築年月:1991年12月築

■おすすめポイント

・西側バルコニーにつき陽当たり良好

・旭化成工業施工

・南側は杉森児童遊園に隣接しており開放感あり

・ゆとりあるLDK

・小屋裏収納スペースあり、収納スペース豊富

近期網站遭惡意攻擊,基於安全考量
目前僅接受會員查詢物件詳細資料
類型 一戶建
物件編號 1089233
名稱 調布市染地2丁目戸建
價格 7,400万円
物件現況 空家
管理費等 0円
修繕積立金 0円
所在地 東京都調布市染地2丁目
交通 京王線布田 (步行 13 分)
格局 3LDK
房號 --
總樓層 2階建 
屋齡 1991 年 (築 34 年)
面積 110.81㎡
約 33.52 坪
約 1,192.76 平方英呎
平米單價 日幣:66.78万円
台幣:13.33萬
港幣:3.37萬
坪單價 日幣:220.76万円
台幣:44.06萬
港幣:11.15萬
平方英呎 日幣:6.20万円
台幣:1.24萬
港幣:0.31萬
總戶數 1
方位 --
建築構造 軽量鉄骨
土地權利 所有権
用途地域 第1種低層住居専用地域
土地面積 169.65㎡
都市計畫 市街化区域
備註 この度は『 調布市染地2丁目戸建 』のページをご覧いただき、誠にありがとうございます。

本物件は立地が魅力の一戸建住宅となります。

現地は新築時に旭化成工業のヘーベルハウスで施工されており、
敷地に接する南側は公園のため、陽当たりもよく住環境良好です。

お問い合わせは『 大谷 』(おおたに)までお気軽にご連絡ください。

お客様専用フリーコールは【0120-062-532】です。
情報公開日 2025年10月27日
目前狀態 空家
合約狀態 仲介
個人情報蒐集前告知
JP-Home.com 日本房屋網為上益國際有限公司經營管理,為了確保消費者之個人資料、隱私及消費者權益之保護,於交易過程中將使用消費者之個人資料,謹依個人資料保護法第 8 條規定,蒐集個人資料除用於本公司之會員管理、客戶管理之檢索查詢等功能外,本公司將利用個人電話號碼、LINE、Email 資料進行行銷,如有侵害到個人權益,請告知請求刪除會員資料。


  • 宜家國際地產(統一編號:42647425)
    本網站所刊登之不動產物件均已合法授權刊登
    本網站內容享有著作權,禁止侵害,違者必究
    Copyright © 2011 - 2025 All Rights Reserved