物件搜尋:


愛知県 名古屋市緑区(大清水パークホームズ)

專家的建議


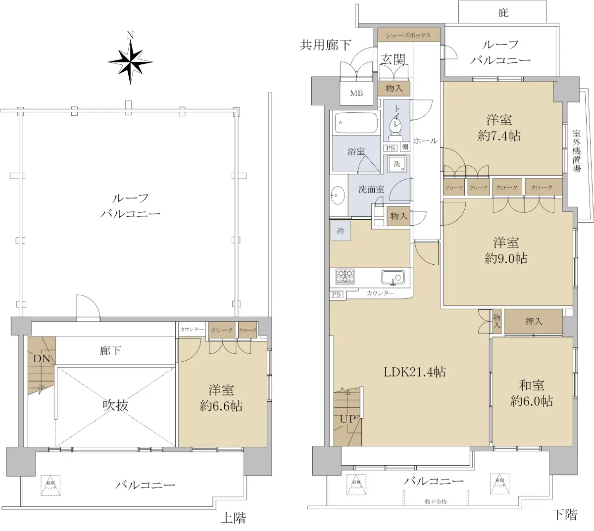
・南東角部屋にて陽当たり良好
・4LDK的メゾネットタイプ
・専有面積:117.89㎡
・LDK21.4帖
・開放感的ある吹き抜けリビング(天井高さ約5.0m)
・上階無し的ルーフバルコニー付
・安心的オートロックシステム
・便利な共有洗車コーナー有り
・駐車場1住戸1台有り:無償

~インフォメーション~
■セブンイレブン名古屋大清水1丁目店 徒歩4分 (約310m)
■スー

近期網站遭惡意攻擊,基於安全考量
目前僅接受會員查詢物件詳細資料
類型 華廈
物件編號 1089986
名稱 大清水パークホームズ
價格 3,380万円 > 2,980万円
物件現況 空家
管理費等 14,500円
修繕積立金 11,550円
所在地 愛知県名古屋市緑区大清水1丁目
交通 地下鉄桜通線徳重 (步行 10 分)
格局 4LDK
房號 --
總樓層 4階部分/7階建 
屋齡 1999 年 (築 27 年)
面積 117.89㎡
約 35.66 坪
約 1,268.97 平方英呎
平米單價 日幣:28.67万円
台幣:5.84萬
港幣:1.45萬
坪單價 日幣:94.78万円
台幣:19.30萬
港幣:4.78萬
平方英呎 日幣:2.66万円
台幣:0.54萬
港幣:0.13萬
總戶數 73
方位 南/角部屋
建築構造 鉄筋コンクリート造
土地權利 所有権
用途地域 -
管理形態 全部委託
管理公司 三井不動産レジデンシャルサービス
管理人 巡回
建築公司 清水建設
土地面積 -
都市計畫 -
備註 ご覧いただき、誠にありがとうございます。

本マンションは三井不動産旧分譲のマンションです。
バルコニー側の柱は外に出ているタイプですので、室内の壁はすっきりしており家具の配置がしやすいのが特徴です。
【専有部分】
南東角部屋にて陽当たり良好、4LDKのメゾネットタイプで専有面積は117.89㎡、上階無しのルーフバルコニー付です。
LDK21.4帖&開放感のある吹き抜けリビング(天井高さ約5.0m)となっております。
本マンションで最も専有面積の広いプランとなります。

【共有部分】
情報公開日 2025年10月31日
目前狀態 空家
合約狀態 仲介
個人情報蒐集前告知
JP-Home.com 日本房屋網為上益國際有限公司經營管理,為了確保消費者之個人資料、隱私及消費者權益之保護,於交易過程中將使用消費者之個人資料,謹依個人資料保護法第 8 條規定,蒐集個人資料除用於本公司之會員管理、客戶管理之檢索查詢等功能外,本公司將利用個人電話號碼、LINE、Email 資料進行行銷,如有侵害到個人權益,請告知請求刪除會員資料。