物件搜尋:


東京23区 大田区(大田区久が原3丁目戸建)

專家的建議


■東急池上線「久が原」駅徒歩7分

■閑静な住宅街につき住環境良好

■南向きバルコニーにつき陽当り良好
~ライフインフォメーション~
・まいばすけっと久が原3丁目店まで約80m 徒歩1分
・セブンイレブン大田区久が原3丁目店 約175m 徒歩3分
・サミット久が原店 約500m 徒歩7分
・ウエルシア久が原駅前店 約540m 徒歩7分
・くすりセイジョー久が原駅前店 約535 徒歩7分

近期網站遭惡意攻擊,基於安全考量
目前僅接受會員查詢物件詳細資料
類型 一戶建
物件編號 1090240
名稱 大田区久が原3丁目戸建
價格 7,480万円 > 7,380万円
物件現況 居住中
管理費等 0円
修繕積立金 0円
所在地 東京都大田区久が原3丁目
交通 東急池上線久が原 (步行 7 分)
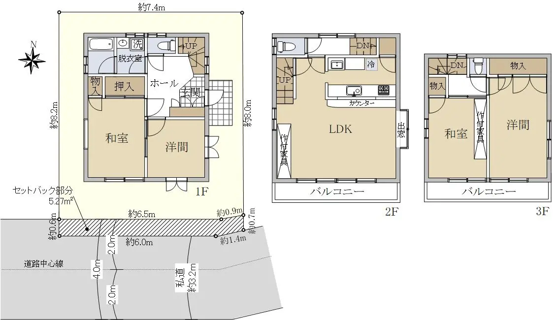
格局 4LDK
房號 --
總樓層 3階建 
屋齡 1997 年 (築 28 年)
面積 99.02㎡
約 29.95 坪
約 1,065.85 平方英呎
平米單價 日幣:75.54万円
台幣:15.36萬
港幣:3.80萬
坪單價 日幣:249.72万円
台幣:50.77萬
港幣:12.56萬
平方英呎 日幣:7.02万円
台幣:1.43萬
港幣:0.35萬
總戶數 1
方位 --
建築構造 木造
土地權利 所有権
用途地域 第1種中高層住居専用地域
土地面積 66.49㎡
都市計畫 市街化区域
備註 この度は、当ページにアクセス頂き、誠にありがとうございます。
すみふの仲介ステップの大室英樹と申します。

まずは、是非室内をご見学の上、ご検討くださいますようお願い申し上げます。ご見学のご依頼やその他ご不明な点等ございましたら、お気軽にお問い合わせください。
情報公開日 2025年11月1日
目前狀態 居住中
合約狀態 仲介
個人情報蒐集前告知
JP-Home.com 日本房屋網為上益國際有限公司經營管理,為了確保消費者之個人資料、隱私及消費者權益之保護,於交易過程中將使用消費者之個人資料,謹依個人資料保護法第 8 條規定,蒐集個人資料除用於本公司之會員管理、客戶管理之檢索查詢等功能外,本公司將利用個人電話號碼、LINE、Email 資料進行行銷,如有侵害到個人權益,請告知請求刪除會員資料。


  • 宜家國際地產(統一編號:42647425)
    本網站所刊登之不動產物件均已合法授權刊登
    本網站內容享有著作權,禁止侵害,違者必究
    Copyright © 2011 - 2025 All Rights Reserved