物件搜尋:


東京23区 葛飾区(葛飾区東金町8丁目戸建)

專家的建議


土地面積:311.18㎡(約94.13坪)
建物面積:1階86.95㎡、2階71.63㎡ 延床面積158.58㎡(約47.97坪)
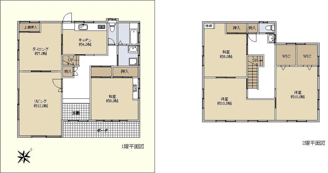
間取り:4LDK(洋室①約10.5帖、洋室②約10.0帖、和室①約8.0帖、和室②約8.0帖、LDK約23.0帖)
カースペース:3台(車庫2台、外1台)

~交通~
 ・JR常磐線「金町」駅 徒歩24分
 ・京成金町線「京成金町」駅 徒歩25分
 ・JR常磐線「金町」駅バス4分

近期網站遭惡意攻擊,基於安全考量
目前僅接受會員查詢物件詳細資料
類型 一戶建
物件編號 1090500
名稱 葛飾区東金町8丁目戸建
價格 6,980万円
物件現況 居住中
管理費等 0円
修繕積立金 0円
所在地 東京都葛飾区東金町8丁目
交通 常磐線(各駅)金町 (步行 24 分)
格局 4LDK
房號 --
總樓層 2階建 
屋齡 1981 年 (築 44 年)
面積 158.58㎡
約 47.97 坪
約 1,706.96 平方英呎
平米單價 日幣:44.02万円
台幣:8.77萬
港幣:2.22萬
坪單價 日幣:145.51万円
台幣:29.00萬
港幣:7.33萬
平方英呎 日幣:4.09万円
台幣:0.82萬
港幣:0.21萬
總戶數 1
方位 --
建築構造 木造
土地權利 所有権
用途地域 第2種低層住居専用地域
土地面積 311.18㎡
都市計畫 市街化区域
備註 「葛飾区東金町8丁目戸建」をご覧いただきましてありがとうございます。

本物件は、和風門から敷地に入り、お庭を通過してから家屋に行きつきます。

車庫の屋上は洗濯物干場になっており、南東側に位置しているため、陽当たり良好です。

現地ご内覧や資料請求などはお気軽にお問合せくださいませ。

フリーコール:0120-205-886
担当者:山本
情報公開日 2025年11月2日
目前狀態 居住中
合約狀態 仲介
個人情報蒐集前告知
JP-Home.com 日本房屋網為上益國際有限公司經營管理,為了確保消費者之個人資料、隱私及消費者權益之保護,於交易過程中將使用消費者之個人資料,謹依個人資料保護法第 8 條規定,蒐集個人資料除用於本公司之會員管理、客戶管理之檢索查詢等功能外,本公司將利用個人電話號碼、LINE、Email 資料進行行銷,如有侵害到個人權益,請告知請求刪除會員資料。


  • 宜家國際地產(統一編號:42647425)
    本網站所刊登之不動產物件均已合法授權刊登
    本網站內容享有著作權,禁止侵害,違者必究
    Copyright © 2011 - 2025 All Rights Reserved