物件搜尋:


大阪府 大阪市福島区(シティタワー大阪福島)

專家的建議


☆☆担当【新垣】的おすすめポイント☆☆

◆37階建地下1階付19階部分。
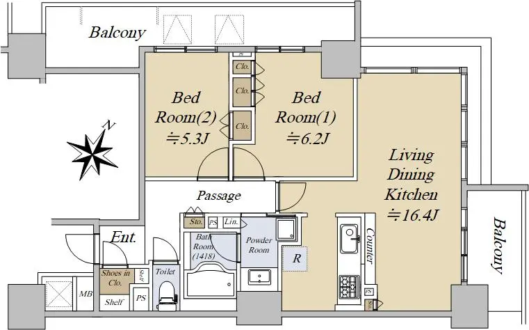
◆専有面積/64.32㎡
◆間取り/2LDK
◆リビングダイニングに床暖房有り。
◆1418サイズ的バスルーム有り。
◆採光・眺望ともに良好です。
◆リビングダイニングキッチン約16.4帖ございます。
◆室内大変丁寧にご使用されております。【交通アクセス】
◎阪神本線「野田」駅まで徒歩7分
◎JR大阪環状線「福島

近期網站遭惡意攻擊,基於安全考量
目前僅接受會員查詢物件詳細資料
類型 大樓
物件編號 1090663
名稱 シティタワー大阪福島
價格 8,150万円
物件現況 居住中
管理費等 13,230円
修繕積立金 15,230円
所在地 大阪府大阪市福島区鷺洲3丁目
交通 阪神本線野田 (步行 7 分)
格局 2LDK
房號 --
總樓層 19階部分/37階建 
屋齡 2009 年 (築 16 年)
面積 64.32㎡
約 19.46 坪
約 692.34 平方英呎
陽台 17.51m²
約 5.30 坪
約 188.48 平方英呎
平米單價 日幣:126.71万円
台幣:25.26萬
港幣:6.38萬
坪單價 日幣:418.88万円
台幣:83.49萬
港幣:21.11萬
平方英呎 日幣:11.77万円
台幣:2.35萬
港幣:0.59萬
總戶數 349
方位 北/角部屋
建築構造 鉄筋コンクリート造
土地權利 所有権
用途地域 -
管理形態 全部委託
管理公司 住友不動産建物サービス
管理人 日勤
建築公司 (株)奥村組
土地面積 -
都市計畫 -
備註 この度、当物件をご覧いただき誠にありがとうございます。
当物件は、地上37階建地下1階付、19階部分、北東角住戸で採光・眺望はともに良好です。
室内大変綺麗でございます。


ご内覧希望の際は担当の新垣(しんがき)までお問合せの程よろしくお願い申し上げます。

ご内覧ご予約・詳細お問い合わせ
→フリーコール 0120-135-323
担当:【新垣/しんがき】まで
情報公開日 2025年11月3日
目前狀態 居住中
合約狀態 仲介
個人情報蒐集前告知
JP-Home.com 日本房屋網為上益國際有限公司經營管理,為了確保消費者之個人資料、隱私及消費者權益之保護,於交易過程中將使用消費者之個人資料,謹依個人資料保護法第 8 條規定,蒐集個人資料除用於本公司之會員管理、客戶管理之檢索查詢等功能外,本公司將利用個人電話號碼、LINE、Email 資料進行行銷,如有侵害到個人權益,請告知請求刪除會員資料。