物件搜尋:


大阪府 大阪市淀川区(大阪市淀川区宮原2丁目戸建)

專家的建議


◆2022年9月建築
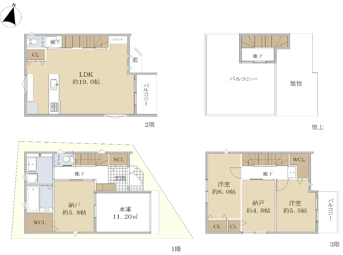
◆2SSLDK
◆駐車スペースあり(車種による)
◆東側4m公道 西側5m公道に接道
◆屋上バルコニーから的眺望良好です!
◆LDK 約19.0帖
◆床暖房あり◆JR東海道本線「東淀川駅」・・・約147m 徒歩2分
◆JR東海道本線「新大阪駅」・・・約741m 徒歩10分
◆大阪メトロ御堂筋線「東三国駅」・約516m 徒歩7分
◆北中島小学校・・・・・・・・・・約856m 徒歩11分<

近期網站遭惡意攻擊,基於安全考量
目前僅接受會員查詢物件詳細資料
類型 一戶建
物件編號 1090823
名稱 大阪市淀川区宮原2丁目戸建
價格 5,480万円 > 4,980万円
物件現況 空家
管理費等 0円
修繕積立金 0円
所在地 大阪府大阪市淀川区宮原2丁目
交通 JR東海道本線東淀川 (步行 2 分)
格局 2SLDK
房號 --
總樓層 3階建 
屋齡 2022 年 (築 4 年)
面積 112.38㎡
約 33.99 坪
約 1,209.66 平方英呎
平米單價 日幣:48.76万円
台幣:9.77萬
港幣:2.41萬
坪單價 日幣:161.20万円
台幣:32.28萬
港幣:7.96萬
平方英呎 日幣:4.53万円
台幣:0.91萬
港幣:0.22萬
總戶數 1
方位 --
建築構造 木造
土地權利 所有権
用途地域 商業地域
土地面積 59.58㎡
都市計畫 市街化区域
備註 「淀川区宮原2丁目 戸建」のページをご覧頂き誠にありがとうございます。
戸建をお探しのお客様はまず一度ご内覧ください。
ご検討の際はお気軽にフリーコール(携帯電話からも通話可能)
【 0120-317-713 】
地域担当:車田 勇輝(くるまだ ゆうき)まで、お問合せ下さいませ。

資料請求、内覧等ございましたらなんなりとお申し付けください!
情報公開日 2025年11月4日
目前狀態 空家
合約狀態 仲介
個人情報蒐集前告知
JP-Home.com 日本房屋網為上益國際有限公司經營管理,為了確保消費者之個人資料、隱私及消費者權益之保護,於交易過程中將使用消費者之個人資料,謹依個人資料保護法第 8 條規定,蒐集個人資料除用於本公司之會員管理、客戶管理之檢索查詢等功能外,本公司將利用個人電話號碼、LINE、Email 資料進行行銷,如有侵害到個人權益,請告知請求刪除會員資料。