物件搜尋:


東京都下 西東京市(西東京市南町6丁目戸建)

專家的建議


「西東京市南町6丁目戸建」的物件紹介ページを
ご覧いただきまして、誠にありがとうございます。

~Point~
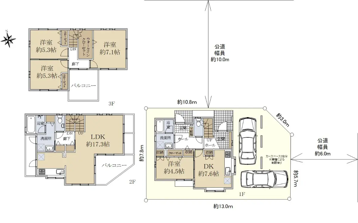
北・東側接道的角地
閑静な住宅街
平坦地
建蔽率:70%
容積率:200%
カースペース2台分(車種による制限あり)
バルコニー3面、南側庭あり
二世帯住宅としても利用可

~Access~
西武新宿線「田無」駅・・・徒歩9分(約720m)

近期網站遭惡意攻擊,基於安全考量
目前僅接受會員查詢物件詳細資料
類型 一戶建
物件編號 1091374
名稱 西東京市南町6丁目戸建
價格 7,480万円 > 6,980万円
物件現況 空家
管理費等 0円
修繕積立金 0円
所在地 東京都西東京市南町6丁目
交通 西武新宿線田無 (步行 9 分)
格局 4LDK
房號 --
總樓層 3階建 
屋齡 2006 年 (築 20 年)
面積 120.96㎡
約 36.59 坪
約 1,302.01 平方英呎
平米單價 日幣:61.84万円
台幣:12.27萬
港幣:3.05萬
坪單價 日幣:204.43万円
台幣:40.58萬
港幣:10.07萬
平方英呎 日幣:5.74万円
台幣:1.14萬
港幣:0.28萬
總戶數 1
方位 --
建築構造 木造
土地權利 所有権
用途地域 第1種中高層住居専用地域
土地面積 100.43㎡
都市計畫 市街化区域
備註 -不動産の購入をご検討中のお客様へ-

物件のご検討については、写真や図面だけではなく現地を見ていただく事をお勧めします。
現地をご覧頂くことにより、周辺環境を確認いただけるだけでなく、
ご案内する担当者よりプロの目から見た長所・短所等を詳しくご説明差し上げる事もできます。
興味をお持ちのお客様は是非お問い合わせください。

フリーコール:0120-301-451

【販売図面】物件の魅力をお伝えいたします。
情報公開日 2025年11月8日
目前狀態 空家
合約狀態 仲介
個人情報蒐集前告知
JP-Home.com 日本房屋網為上益國際有限公司經營管理,為了確保消費者之個人資料、隱私及消費者權益之保護,於交易過程中將使用消費者之個人資料,謹依個人資料保護法第 8 條規定,蒐集個人資料除用於本公司之會員管理、客戶管理之檢索查詢等功能外,本公司將利用個人電話號碼、LINE、Email 資料進行行銷,如有侵害到個人權益,請告知請求刪除會員資料。


  • 宜家國際地產(統一編號:42647425)
    本網站所刊登之不動產物件均已合法授權刊登
    本網站內容享有著作權,禁止侵害,違者必究
    Copyright © 2011 - 2026 All Rights Reserved