物件搜尋:


東京都下 町田市(町田市三輪緑山1丁目戸建)

專家的建議


■交通:バス停「三輪中央公園前」徒歩1分、小田急線「鶴川」駅までバス乗車10分
    小田急線「鶴川」駅まで徒歩22分

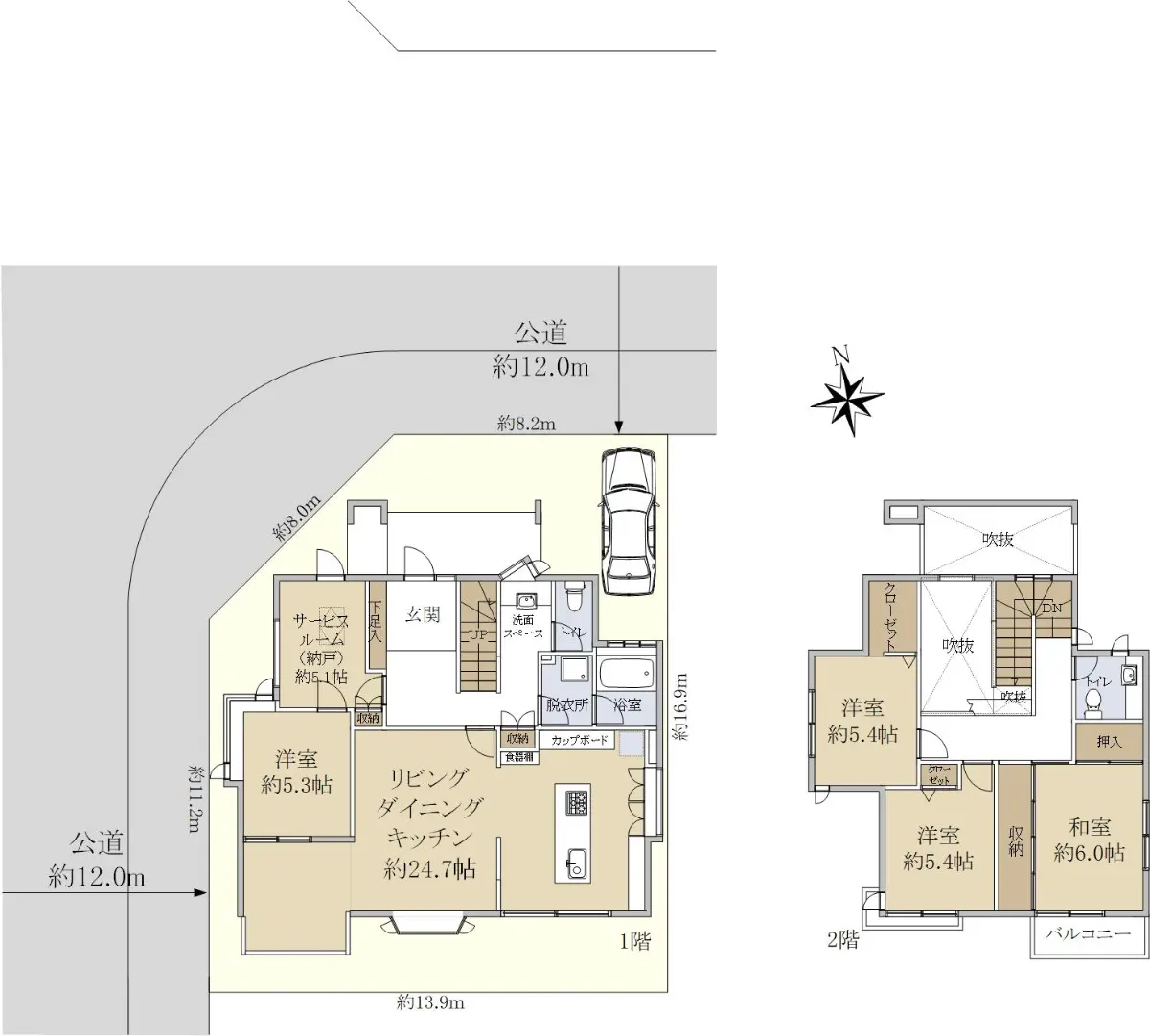
■土地:221.20㎡(66.91坪)
■建物:128.98㎡(39.01坪)
■間取り:4SLDK ※S=サービスルーム(納戸)

■リフォーム履歴あり(2011年4月)
・キッチン
 アイランドキッチン、大谷石カウンター、壁タイル張り
・リビングダイニング
 漆

近期網站遭惡意攻擊,基於安全考量
目前僅接受會員查詢物件詳細資料
類型 一戶建
物件編號 1091470
名稱 町田市三輪緑山1丁目戸建
價格 4,180万円
物件現況 居住中
管理費等 0円
修繕積立金 0円
所在地 東京都町田市三輪緑山1丁目
交通 小田急小田原線鶴川 (步行 22 分)
格局 4SLDK
房號 --
總樓層 2階建 
屋齡 1985 年 (築 40 年)
面積 128.98㎡
約 39.02 坪
約 1,388.34 平方英呎
平米單價 日幣:32.41万円
台幣:6.55萬
港幣:1.64萬
坪單價 日幣:107.13万円
台幣:21.66萬
港幣:5.44萬
平方英呎 日幣:3.01万円
台幣:0.61萬
港幣:0.15萬
總戶數 1
方位 --
建築構造 木造
土地權利 所有権
用途地域 第1種低層住居専用地域
土地面積 221.20㎡
都市計畫 市街化区域
備註 【町田市三輪緑山1丁目戸建】
三輪緑山1丁目の角地にある戸建です。
リフォーム履歴もあります。
是非一度、室内をご覧いただきたい物件です。

不動産のご購入に関しては、写真や図面だけでなく、
実際に現地をご覧いただくことにより、
周辺環境や眺望、陽当たり等をご確認いただくだけでなく、
ご案内する担当者より、プロの目から見た長所・短所等を詳しくご説明することも可能です。

情報公開日 2025年11月9日
目前狀態 居住中
合約狀態 仲介
個人情報蒐集前告知
JP-Home.com 日本房屋網為上益國際有限公司經營管理,為了確保消費者之個人資料、隱私及消費者權益之保護,於交易過程中將使用消費者之個人資料,謹依個人資料保護法第 8 條規定,蒐集個人資料除用於本公司之會員管理、客戶管理之檢索查詢等功能外,本公司將利用個人電話號碼、LINE、Email 資料進行行銷,如有侵害到個人權益,請告知請求刪除會員資料。