物件搜尋:


東京23区 江東区(南砂町グリーンハイツ)

專家的建議


<お部屋について>
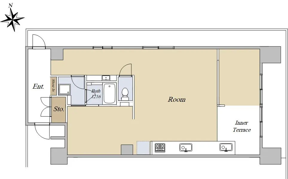
■8階部分 北×東向き角住戸 
■L字型バルコニー(北・東)
■専有面積:74.88㎡
■バルコニー面積:22.70㎡
■全居室がバルコニーに面しており、採光・通風良好!
■平成28年6月リノベーション実施済み
間取りタイプ変更可能。
※リフォーム費用は買主様ご負担。

【リノベーション内容】

■フローリング張替え■浴室交換■洗面台交換■トイレ交換他

近期網站遭惡意攻擊,基於安全考量
目前僅接受會員查詢物件詳細資料
類型 大樓
物件編號 1091854
名稱 南砂町グリーンハイツ
價格 5,480万円 > 4,480万円
物件現況 居住中
管理費等 7,100円
修繕積立金 10,900円
所在地 東京都江東区南砂3丁目
交通 東京メトロ東西線南砂町 (步行 9 分)
格局 1R
房號 --
總樓層 8階部分/14階建 
屋齡 1981 年 (築 45 年)
面積 74.88㎡
約 22.65 坪
約 806.01 平方英呎
陽台 22m²
約 6.66 坪
約 236.81 平方英呎
平米單價 日幣:73.18万円
台幣:14.90萬
港幣:3.69萬
坪單價 日幣:241.93万円
台幣:49.26萬
港幣:12.20萬
平方英呎 日幣:6.80万円
台幣:1.38萬
港幣:0.34萬
總戶數 499
方位 東/角部屋
建築構造 鉄骨鉄筋コンクリート造
土地權利 所有権
用途地域 -
管理形態 全部委託
管理人 日勤
建築公司 株式会社大林組・株式会社長谷川工務店・株式会社銭高組
土地面積 -
都市計畫 -
備註 南砂町グリーンハイツは東京都江東区南砂三丁目に建つ、1号棟、2号棟ともに地上14階建て、総戸数499戸の大規模コミュニティマンションです。
敷地面積1万5,000㎡超、幹線道路から奥まった場所にあり、落ち着いた環境の住宅街に立地しています。
敷地内には子ども用の遊び場もあり、小学校や教育施設が徒歩圏内のため、子育て環境が充実しています。
2016年8月給水方式変更工事実施済みで修繕もしっかりしています。

本物件は【8階部分/北×東向き角住戸】のタイプです。
全居室がL字型のバルコニーに面し、採光・通風良好です。
専有面積74.88㎡ゆとりのある間取りです。
■物件資料
分譲時のパンフレットや周辺環境などの資料もご提供可能です。
情報公開日 2025年11月11日
目前狀態 居住中
合約狀態 仲介
個人情報蒐集前告知
JP-Home.com 日本房屋網為上益國際有限公司經營管理,為了確保消費者之個人資料、隱私及消費者權益之保護,於交易過程中將使用消費者之個人資料,謹依個人資料保護法第 8 條規定,蒐集個人資料除用於本公司之會員管理、客戶管理之檢索查詢等功能外,本公司將利用個人電話號碼、LINE、Email 資料進行行銷,如有侵害到個人權益,請告知請求刪除會員資料。


  • 宜家國際地產(統一編號:42647425)
    本網站所刊登之不動產物件均已合法授權刊登
    本網站內容享有著作權,禁止侵害,違者必究
    Copyright © 2011 - 2026 All Rights Reserved