物件搜尋:


東京23区 中野区(中野区本町2丁目1棟ビル)

專家的建議


◆邸宅・事務所・芸能プロダクション・研修施設等的様々な用途で利用可能
◆建物内的窓にはステンドグラスが使用されております。
◆坪庭や応接室もありゆとり的ある空間となっております。
◆2路線2駅利用可能
◆吹き抜けや窓が複数あり採光が取れる建物

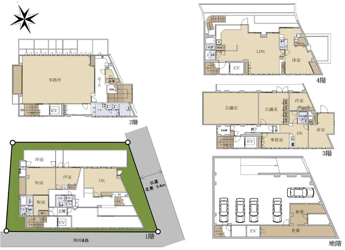
間取り:地下:駐車場・1階:3DK・2階:礼拝堂+事務室・3階:2DK+会議室+事務室・4階:1LDK

近期網站遭惡意攻擊,基於安全考量
目前僅接受會員查詢物件詳細資料
類型 整棟大樓
物件編號 1092042
名稱 中野区本町2丁目1棟ビル
價格 110,000万円
物件現況 居住中
管理費等 0円
修繕積立金 0円
所在地 東京都中野区本町2丁目
交通 東京メトロ方南支線中野新橋 (步行 9 分)
格局 1LDK
房號 --
總樓層 4階建 
屋齡 1998 年 (築 27 年)
面積 861.00㎡
約 260.45 坪
約 9,267.80 平方英呎
平米單價 日幣:127.76万円
台幣:25.64萬
港幣:6.43萬
坪單價 日幣:422.34万円
台幣:84.75萬
港幣:21.26萬
平方英呎 日幣:11.87万円
台幣:2.38萬
港幣:0.60萬
總戶數 1
方位 --
建築構造 鉄筋コンクリート造
土地權利 所有権
用途地域 第1種中高層住居専用地域
建築公司 鹿島建設
土地面積 388.00㎡
都市計畫 市街化区域
備註 この度「中野区本町2丁目1棟ビル」のページをご覧頂き、誠にありがとうございます。
本物件は1998年に竣工した鉄筋コンクリート造4階地下1階のビルです。
多目的に利用可能となっております。

物件をご検討されている方は、図面や写真だけでなく是非現地まで足をお運び頂きご覧頂ければと思います。
お客様専用フリーコールは、0120-994-662になります。
詳細は、担当の「桑畑」までお問い合わせ下さい。
情報公開日 2025年11月14日
目前狀態 居住中
合約狀態 仲介
個人情報蒐集前告知
JP-Home.com 日本房屋網為上益國際有限公司經營管理,為了確保消費者之個人資料、隱私及消費者權益之保護,於交易過程中將使用消費者之個人資料,謹依個人資料保護法第 8 條規定,蒐集個人資料除用於本公司之會員管理、客戶管理之檢索查詢等功能外,本公司將利用個人電話號碼、LINE、Email 資料進行行銷,如有侵害到個人權益,請告知請求刪除會員資料。