物件搜尋:


東京23区 大田区(大田区下丸子4丁目戸建)

專家的建議


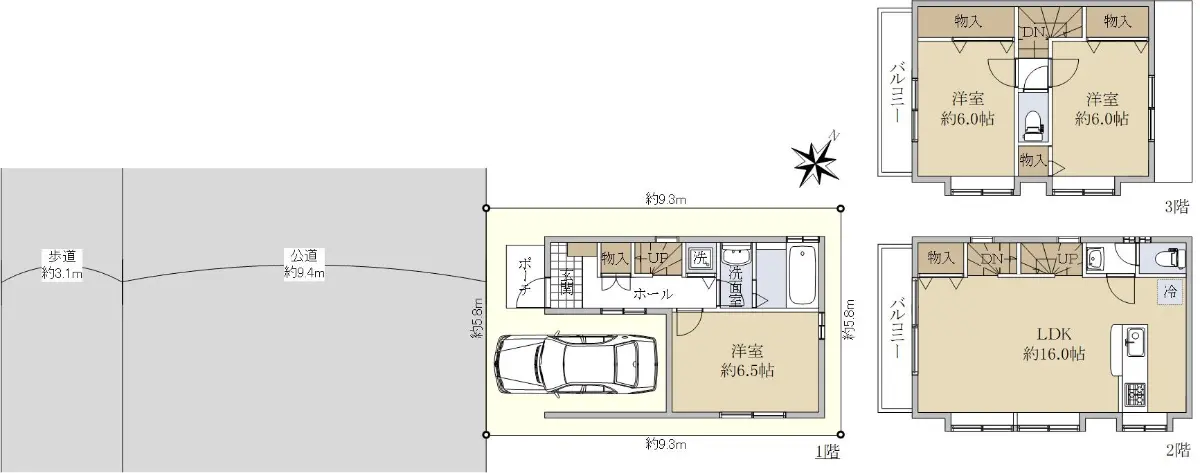
◎2路線2駅利用可能
 東急多摩川線「下丸子」駅徒歩7分
 東急池上線「千鳥町」駅徒歩14分

◎南西道路につき陽当り良好
◎前面道路幅約9.4m
◎土地面積54.27㎡(約16.41坪)
◎建物面積93.15㎡(約28.17坪)的3LDK
◎ビルトイン車庫あり(車種による)
◎閑静な住宅街につき住環境良好

近期網站遭惡意攻擊,基於安全考量
目前僅接受會員查詢物件詳細資料
類型 一戶建
物件編號 1092241
名稱 大田区下丸子4丁目戸建
價格 7,280万円 > 6,780万円
物件現況 居住中
管理費等 0円
修繕積立金 0円
所在地 東京都大田区下丸子4丁目
交通 東急多摩川線下丸子 (步行 7 分)
格局 3LDK
房號 --
總樓層 3階建 
屋齡 2002 年 (築 24 年)
面積 93.15㎡
約 28.18 坪
約 1,002.67 平方英呎
平米單價 日幣:78.15万円
台幣:15.91萬
港幣:3.94萬
坪單價 日幣:258.36万円
台幣:52.61萬
港幣:13.03萬
平方英呎 日幣:7.26万円
台幣:1.48萬
港幣:0.37萬
總戶數 1
方位 --
建築構造 木造
土地權利 所有権
用途地域 準工業地域
土地面積 54.27㎡
都市計畫 市街化区域
備註 この度は、当ページにアクセス頂き、誠にありがとうございます。
住友不動産ステップの大室と申します。

まずは、是非室内をご見学の上、ご検討くださいますようお願い申し上げます。ご見学のご依頼やその他ご不明な点等ございましたら、お気軽にお問い合わせください。
情報公開日 2025年11月15日
目前狀態 居住中
合約狀態 仲介
個人情報蒐集前告知
JP-Home.com 日本房屋網為上益國際有限公司經營管理,為了確保消費者之個人資料、隱私及消費者權益之保護,於交易過程中將使用消費者之個人資料,謹依個人資料保護法第 8 條規定,蒐集個人資料除用於本公司之會員管理、客戶管理之檢索查詢等功能外,本公司將利用個人電話號碼、LINE、Email 資料進行行銷,如有侵害到個人權益,請告知請求刪除會員資料。