物件搜尋:


東京23区 北区(北区堀船2丁目戸建)

專家的建議


▼ACCESS
- JR京浜東北線「王子」駅 徒歩12分
       「上中里」駅 徒歩13分
- JR高崎・宇都宮線「尾久」駅 徒歩14分
- 都電荒川線「梶原」駅 徒歩5分


▼POINT
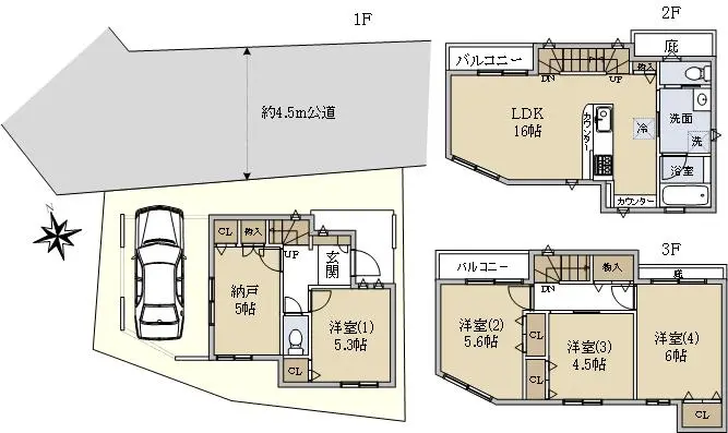
【 土地(所有権) 】
・土地面積(公簿):69.87㎡(21.13坪)
・接道状況:北側公道約4.5m、接道間口9.9m

【 建物 】
- 建物面積(公簿):113.8

近期網站遭惡意攻擊,基於安全考量
目前僅接受會員查詢物件詳細資料
類型 一戶建
物件編號 1092264
名稱 北区堀船2丁目戸建
價格 7,180万円
物件現況 居住中
管理費等 0円
修繕積立金 0円
所在地 東京都北区堀船2丁目
交通 京浜東北・根岸線王子 (步行 12 分)
格局 4SLDK
房號 --
總樓層 3階建 
屋齡 2024 年 (築 1 年)
面積 113.85㎡
約 34.44 坪
約 1,225.48 平方英呎
平米單價 日幣:63.07万円
台幣:12.65萬
港幣:3.17萬
坪單價 日幣:208.48万円
台幣:41.83萬
港幣:10.49萬
平方英呎 日幣:5.86万円
台幣:1.18萬
港幣:0.29萬
總戶數 1
方位 --
建築構造 木造
土地權利 所有権
用途地域 近隣商業地域
土地面積 69.87㎡
都市計畫 市街化区域
備註 この度は、【北区堀船2丁目戸建】をご覧頂き誠に有り難う御座います。
本物件は、JR京浜東北線「王子」駅 徒歩12分の立地です。
ビルトイン車庫(駐車可能な車両は車種による)が附帯している、4SLDKの一戸建となっております。

ご興味がありましたら、担当:東郷(とうごう)までお気軽に申し付けください!

☆不動産の購入を検討されているお客様へ☆ 
初めて不動産を探される方は、住宅ローンや税金等、安い買い物ではない為、不安な部分も多いかと思います。
ローンを組まれる場合、担当者の知識や経験により、組める金融機関の選定が変わってきます。
その為、お支払い金額も変わってきますので、担当者選びがとても重要になります。
情報公開日 2025年11月15日
目前狀態 居住中
合約狀態 仲介
個人情報蒐集前告知
JP-Home.com 日本房屋網為上益國際有限公司經營管理,為了確保消費者之個人資料、隱私及消費者權益之保護,於交易過程中將使用消費者之個人資料,謹依個人資料保護法第 8 條規定,蒐集個人資料除用於本公司之會員管理、客戶管理之檢索查詢等功能外,本公司將利用個人電話號碼、LINE、Email 資料進行行銷,如有侵害到個人權益,請告知請求刪除會員資料。