物件搜尋:


東京23区 足立区(足立区六木2丁目戸建)

專家的建議


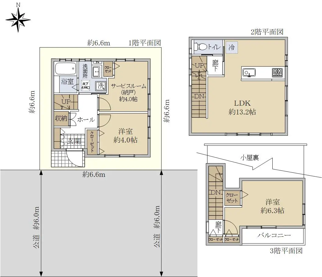
・前面道路公道約6.0m
・2023年2月築的2SLDK
・約13.2帖的LDK
・三口コンロ、食洗機
・日当たり良好ー周辺環境ー
・ファミリーマート六木二丁目店まで約250m
・足立区立中川北小学校まで約450m
・足立区立第十三中学校まで約1300m
・ベニースーパー佐野店まで約700m
・六木二丁目中央公園まで約120m
・ベルクス足立神明店まで約1000m
・ドラックセイムス足立

近期網站遭惡意攻擊,基於安全考量
目前僅接受會員查詢物件詳細資料
類型 一戶建
物件編號 1092268
名稱 足立区六木2丁目戸建
價格 3,280万円 > 3,180万円
物件現況 空家
管理費等 0円
修繕積立金 0円
所在地 東京都足立区六木2丁目
交通 つくばエクスプレス八潮 (步行 24 分)
格局 2SLDK
房號 --
總樓層 3階建 
屋齡 2023 年 (築 3 年)
面積 70.27㎡
約 21.26 坪
約 756.39 平方英呎
平米單價 日幣:46.68万円
台幣:9.35萬
港幣:2.32萬
坪單價 日幣:154.30万円
台幣:30.90萬
港幣:7.67萬
平方英呎 日幣:4.34万円
台幣:0.87萬
港幣:0.22萬
總戶數 1
方位 --
建築構造 木造
土地權利 所有権
用途地域 第1種中高層住居専用地域
土地面積 44.81㎡
都市計畫 市街化区域
備註 ―不動産の購入を検討中のお客様へ-
物件のご検討については、一度現地を見ていただく事をお勧めします。
間取り図面や写真では判断できない部分もあります。
現地をご覧頂くことで周辺環境や室内の状況等を確認いただくだけでなく、
担当者より、物件の長所、短所や購入の流れ等を詳しくご説明させて頂きます。
内覧をご希望のお客様はお気軽にお問い合わせください。
皆様からのお問い合わせ心からお待ちしております。
情報公開日 2025年11月15日
目前狀態 空家
合約狀態 仲介
個人情報蒐集前告知
JP-Home.com 日本房屋網為上益國際有限公司經營管理,為了確保消費者之個人資料、隱私及消費者權益之保護,於交易過程中將使用消費者之個人資料,謹依個人資料保護法第 8 條規定,蒐集個人資料除用於本公司之會員管理、客戶管理之檢索查詢等功能外,本公司將利用個人電話號碼、LINE、Email 資料進行行銷,如有侵害到個人權益,請告知請求刪除會員資料。