物件搜尋:


東京都下 小平市(小平市天神町1丁目戸建)

專家的建議


◇アクセス
・西武新宿線「小平」駅まで徒歩19分

◇概要
・2024年11月築
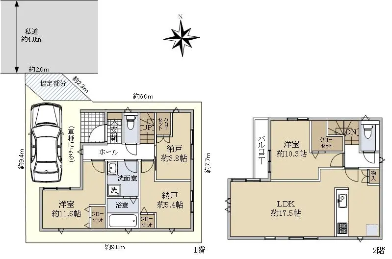
・2LDK+2S
・カースペースあり(車種による)

◇設備・仕様
・システムキッチン・浄水器(水栓一体型)・食器洗浄乾燥機・1坪バス
・追炊き・浴室換気乾燥機・温水洗浄便座(1F、2F)・24時間換気システム
・モニター付きインターホン

◇ライフインフォメーション

近期網站遭惡意攻擊,基於安全考量
目前僅接受會員查詢物件詳細資料
類型 一戶建
物件編號 1092277
名稱 小平市天神町1丁目戸建
價格 4,490万円 > 4,390万円
物件現況 空家
管理費等 0円
修繕積立金 0円
所在地 東京都小平市天神町1丁目
交通 西武新宿線小平 (步行 19 分)
格局 2SLDK
房號 --
總樓層 2階建 
屋齡 2024 年 (築 2 年)
面積 90.98㎡
約 27.52 坪
約 979.31 平方英呎
平米單價 日幣:49.35万円
台幣:10.05萬
港幣:2.49萬
坪單價 日幣:163.15万円
台幣:33.22萬
港幣:8.23萬
平方英呎 日幣:4.58万円
台幣:0.93萬
港幣:0.23萬
總戶數 1
方位 --
建築構造 木造
土地權利 所有権
用途地域 準工業地域
土地面積 82.09㎡
都市計畫 市街化区域
備註 この度は「小平市天神町1丁目戸建」のページをご覧いただき、ありがとうございます。
本物件は、西武新宿線「小平」駅徒歩19分にございます。
複数の買い物施設や小中学校が徒歩15分以内にあり生活しやすい立地です。
是非、現地ご見学いただければと思います。

住宅ローン含む資金計画はもちろん、購入の流れや不動産に関する
一般的なお話など担当よりご説明させて頂きます。


「すぐではないかもしれない…」「資料請求のみ」等のご状況でもどうか
情報公開日 2025年11月15日
目前狀態 空家
合約狀態 仲介
個人情報蒐集前告知
JP-Home.com 日本房屋網為上益國際有限公司經營管理,為了確保消費者之個人資料、隱私及消費者權益之保護,於交易過程中將使用消費者之個人資料,謹依個人資料保護法第 8 條規定,蒐集個人資料除用於本公司之會員管理、客戶管理之檢索查詢等功能外,本公司將利用個人電話號碼、LINE、Email 資料進行行銷,如有侵害到個人權益,請告知請求刪除會員資料。