物件搜尋:


東京都下 小平市(小平市小川町2丁目戸建)

專家的建議


◆JR武蔵野線「新小平」駅徒歩7分
 西武鉄道多摩湖線「青梅街道」駅徒歩11分
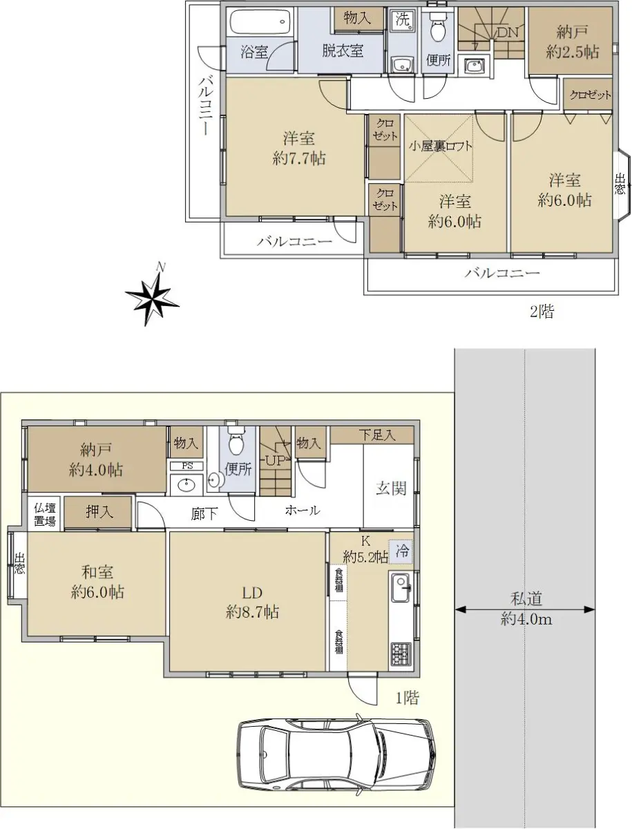
◆土地面積:148.00㎡(44.77坪)
◆建物面積:118.26㎡(35.77坪)
◆間取り:4SLD・K

◎南東・南西にバルコニーがあり陽当たり良好
◎閑静な住宅街
◎駐車場1台分(車種による)※電動シャッター
◎現況空家的為、いつでも内覧可能です。
~~ 周辺環境 ~~
●小平市立小平第十五小学校・

近期網站遭惡意攻擊,基於安全考量
目前僅接受會員查詢物件詳細資料
類型 一戶建
物件編號 1092586
名稱 小平市小川町2丁目戸建
價格 6,900万円 > 5,980万円
物件現況 空家
管理費等 0円
修繕積立金 0円
所在地 東京都小平市小川町2丁目
交通 武蔵野線新小平 (步行 7 分)
格局 4SLDK
房號 --
總樓層 2階建 
屋齡 2003 年 (築 23 年)
面積 118.26㎡
約 35.77 坪
約 1,272.95 平方英呎
平米單價 日幣:58.35万円
台幣:11.88萬
港幣:2.94萬
坪單價 日幣:192.88万円
台幣:39.27萬
港幣:9.73萬
平方英呎 日幣:5.42万円
台幣:1.10萬
港幣:0.27萬
總戶數 1
方位 --
建築構造 木造
土地權利 所有権
用途地域 第1種低層住居専用地域
土地面積 148.00㎡
都市計畫 市街化区域
備註 当HPをご覧いただきまして誠に有難うございます。

本物件は小平市小川町2丁目に位置する間取り4LDKと納戸が2部屋ある一戸建てとなっております。

駐車場が1台分(車種による)あり、電動シャッターが付いております。

本物件に関するご内覧希望のほかご質問がある際はお気軽にご連絡ください。

すみふの仲介ステップ 橋本営業センター

情報公開日 2025年11月17日
目前狀態 空家
合約狀態 仲介
個人情報蒐集前告知
JP-Home.com 日本房屋網為上益國際有限公司經營管理,為了確保消費者之個人資料、隱私及消費者權益之保護,於交易過程中將使用消費者之個人資料,謹依個人資料保護法第 8 條規定,蒐集個人資料除用於本公司之會員管理、客戶管理之檢索查詢等功能外,本公司將利用個人電話號碼、LINE、Email 資料進行行銷,如有侵害到個人權益,請告知請求刪除會員資料。