物件搜尋:


東京23区 文京区(文京千駄木3丁目戸建)

專家的建議


◇◆アクセス◆◇
JR山手線・京浜東北線「西日暮里」駅 徒歩8分
東京メトロ千代田線「西日暮里」駅 徒歩8分
東京メトロ千代田線「千駄木」駅 徒歩9分
東京メトロ南北線「本駒込」駅 徒歩14分

◇◆アピールポイント◆◇
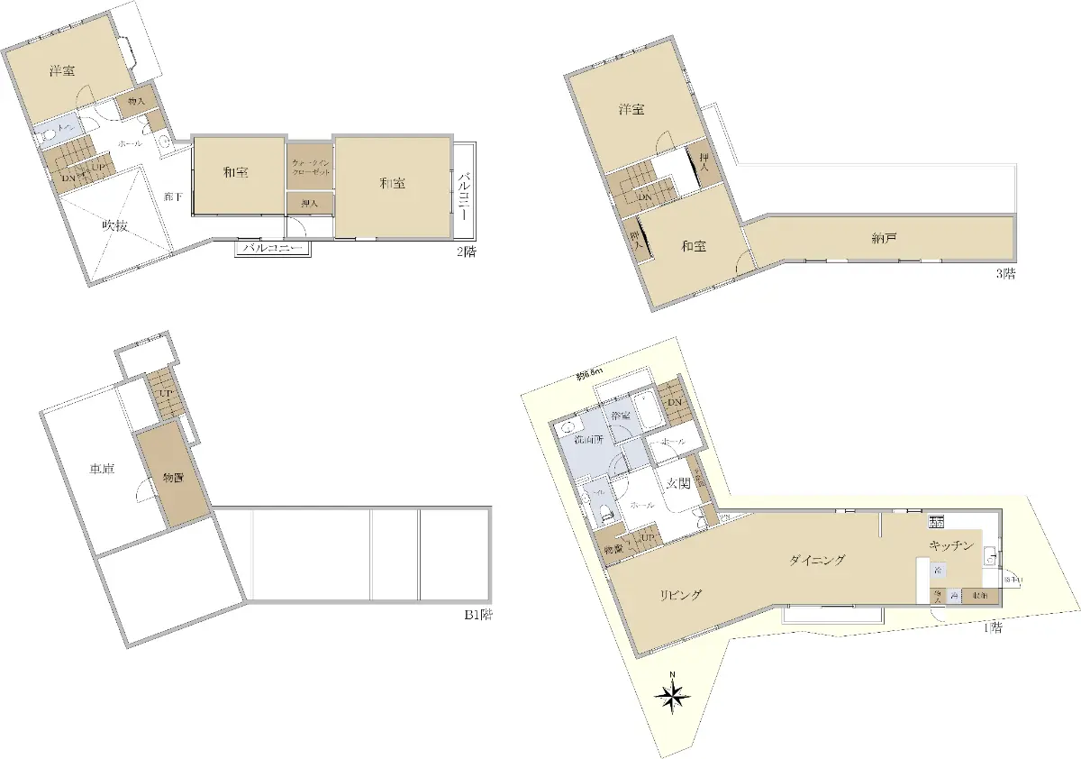
・土地面積:132.24㎡
・建物面積:236.51㎡
 1階:87.47㎡ 2階:75.41㎡
 3階:45.00㎡ 地下1階:28.63㎡
・1993年2月築

近期網站遭惡意攻擊,基於安全考量
目前僅接受會員查詢物件詳細資料
類型 一戶建
物件編號 1092835
名稱 文京千駄木3丁目戸建
價格 28,000万円 > 22,980万円
物件現況 居住中
管理費等 0円
修繕積立金 0円
所在地 東京都文京区千駄木3丁目
交通 山手線西日暮里 (步行 8 分)
格局 5SLDK
房號 --
總樓層 3階建 
屋齡 1993 年 (築 33 年)
面積 236.51㎡
約 71.54 坪
約 2,545.79 平方英呎
平米單價 日幣:118.39万円
台幣:23.71萬
港幣:5.88萬
坪單價 日幣:391.37万円
台幣:78.37萬
港幣:19.44萬
平方英呎 日幣:11.00万円
台幣:2.20萬
港幣:0.55萬
總戶數 1
方位 --
建築構造 その他
土地權利 所有権
用途地域 第1種中高層住居専用地域
土地面積 132.40㎡
都市計畫 市街化区域
備註 物件の詳細を閲覧頂き有難うございます。

こちらの物件はJR山手線・京浜東北線・東京メトロ千代田線「西日暮里駅」徒歩8分に位置し、
徒歩圏内にスーパー・コンビニ・ドラッグストア・郵便局が揃う利便性の高い立地となっております。

詳細につきましては担当の古塩・内藤までご連絡ください。
情報公開日 2025年11月18日
目前狀態 居住中
合約狀態 仲介
個人情報蒐集前告知
JP-Home.com 日本房屋網為上益國際有限公司經營管理,為了確保消費者之個人資料、隱私及消費者權益之保護,於交易過程中將使用消費者之個人資料,謹依個人資料保護法第 8 條規定,蒐集個人資料除用於本公司之會員管理、客戶管理之檢索查詢等功能外,本公司將利用個人電話號碼、LINE、Email 資料進行行銷,如有侵害到個人權益,請告知請求刪除會員資料。


  • 宜家國際地產(統一編號:42647425)
    本網站所刊登之不動產物件均已合法授權刊登
    本網站內容享有著作權,禁止侵害,違者必究
    Copyright © 2011 - 2026 All Rights Reserved