物件搜尋:


東京23区 文京区(グリーンパーク文京西片)

專家的建議


≪アクセス≫
◆東京メトロ南北線・丸ノ内線「後楽園」駅 徒歩8分
◆都営三田線「春日」駅 徒歩6分

≪室内設備≫
【リビング】
◆足元から部屋全体を均一に暖める『TES温水床暖房』
◆全居室空気洗浄機能付エアコン装備

【キッチン】
◆日々的家事をお手伝い『スライド式食器洗い乾燥機』

【浴室】
◆TES式浴室暖房乾燥機
◆オートバス

近期網站遭惡意攻擊,基於安全考量
目前僅接受會員查詢物件詳細資料
類型 大樓
物件編號 1093129
名稱 グリーンパーク文京西片
價格 16,000万円 > 15,680万円
物件現況 居住中
管理費等 22,200円
修繕積立金 7,500円
所在地 東京都文京区西片1丁目
交通 都営三田線春日 (步行 6 分)
格局 3LDK
房號 --
總樓層 14階部分/14階建 
屋齡 2025 年 (築 1 年)
面積 59.69㎡
約 18.06 坪
約 642.50 平方英呎
陽台 5m²
約 1.51 坪
約 53.82 平方英呎
平米單價 日幣:268.05万円
台幣:53.90萬
港幣:13.34萬
坪單價 日幣:886.12万円
台幣:178.19萬
港幣:44.10萬
平方英呎 日幣:24.90万円
台幣:5.01萬
港幣:1.24萬
總戶數 26
方位
建築構造 鉄筋コンクリート造
土地權利 所有権
用途地域 -
管理形態 全部委託
管理公司 Human Care
管理人 日勤
建築公司 多田建設株式会社
土地面積 -
都市計畫 -
備註 この度は『GREEN PARK文京西片』をご覧いただき誠にありがとうございます。

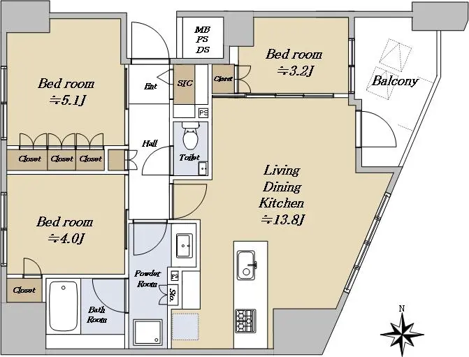
本物件は2025年2月築、地上14階建14階部分、最上階の東向き住戸です。

間取りは3LD・K(LDK:約13.8帖、洋室:約5.1帖、約4.0帖、約3.2帖)となっております。
全居室に収納スペースがあり、収納豊富です。
ダブルオートロックシステムやノンタッチキーなどセキュリティ面が充実しています。
物件周辺にはコンビニやスーパー、公園もあり、周辺環境良好です。
東京メトロ南北線、丸の内線、都営三田線の3線利用でき、交通の便も良好です。

情報公開日 2025年11月21日
目前狀態 居住中
合約狀態 仲介
個人情報蒐集前告知
JP-Home.com 日本房屋網為上益國際有限公司經營管理,為了確保消費者之個人資料、隱私及消費者權益之保護,於交易過程中將使用消費者之個人資料,謹依個人資料保護法第 8 條規定,蒐集個人資料除用於本公司之會員管理、客戶管理之檢索查詢等功能外,本公司將利用個人電話號碼、LINE、Email 資料進行行銷,如有侵害到個人權益,請告知請求刪除會員資料。


  • 宜家國際地產(統一編號:42647425)
    本網站所刊登之不動產物件均已合法授權刊登
    本網站內容享有著作權,禁止侵害,違者必究
    Copyright © 2011 - 2026 All Rights Reserved