物件搜尋:


大阪府 堺市南区(堺市南区檜尾戸建)

專家的建議


---オススメポイント-------
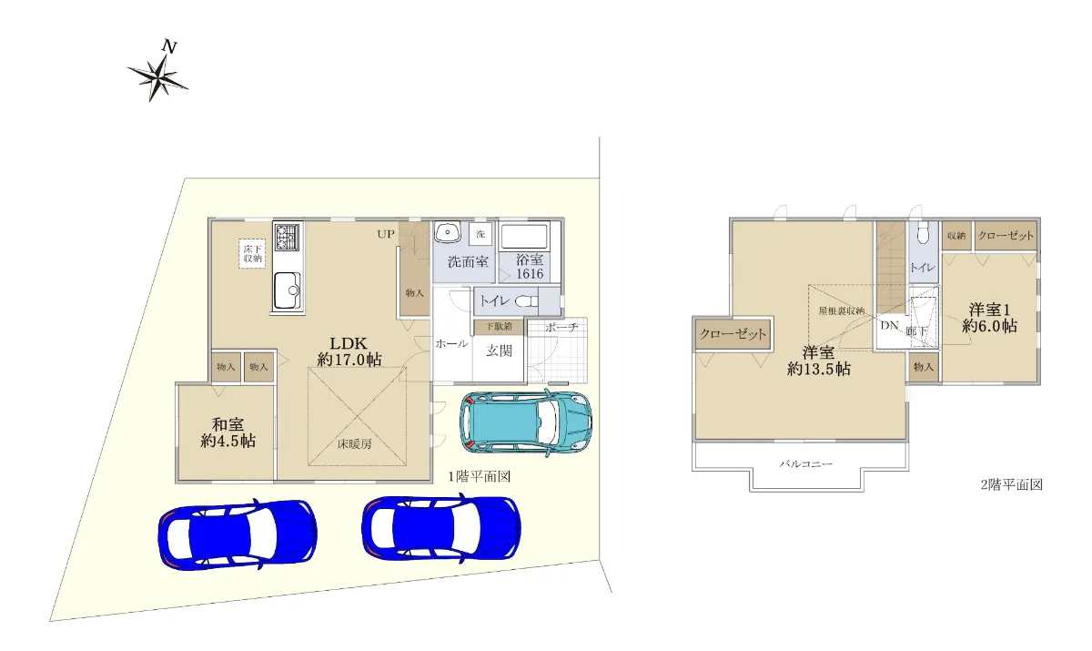
○土地面積121.74㎡(36.82坪)
○建物面積105.98㎡(32.05坪)
○3台駐車可能(車種による)
〇1階・2階にトイレあり
〇平成20年7月築
〇南海泉北線「栂・美木多」駅まで徒歩7分【周辺環境】
・トナリエ栂・美木多まで徒歩8分(約610m)
・ファミリーマート栂美木多駅前店まで徒歩8分(約610m)
・栂美木多駅前郵便局まで徒歩8分(約600m)

近期網站遭惡意攻擊,基於安全考量
目前僅接受會員查詢物件詳細資料
類型 一戶建
物件編號 1093229
名稱 堺市南区檜尾戸建
價格 3,480万円 > 3,250万円
物件現況 居住中
管理費等 0円
修繕積立金 0円
所在地 大阪府堺市南区檜尾
交通 南海電鉄泉北線栂・美木多 (步行 7 分)
格局 3LDK
房號 --
總樓層 2階建 
屋齡 2008 年 (築 18 年)
面積 105.98㎡
約 32.06 坪
約 1,140.77 平方英呎
平米單價 日幣:32.84万円
台幣:6.60萬
港幣:1.63萬
坪單價 日幣:108.55万円
台幣:21.83萬
港幣:5.40萬
平方英呎 日幣:3.05万円
台幣:0.61萬
港幣:0.15萬
總戶數 1
方位 --
建築構造 木造
土地權利 所有権
用途地域 無指定
土地面積 121.74㎡
都市計畫 市街化調整区域
備註 この度は「堺市南区檜尾戸建」の物件ページをご覧頂きありがとうございます。
物件のご検討については、写真や図面だけでなく、是非現地をご覧になることをお勧め致します。
現地をご覧頂くことで、周辺環境や物件の状態が明確にご理解頂けるとともに、案内時にお供する担当者より、プロの目から見た長所・短所を詳しくご説明差し上げることもできます。
こちらの物件にご興味をお持ちのお客様は是非ともお問い合わせ下さい。
心よりお待ち致しております。

資料請求、住宅ローンのご相談等、お気軽にご連絡をお待ちしております。
物件に関することや、その他不動産の購入に関するご質問等御座いましたら、
フリーコール(携帯からも通話可能)
【0120-007-367】まで、お気軽にお問合せ下さいませ。
情報公開日 2025年11月22日
目前狀態 居住中
合約狀態 仲介
個人情報蒐集前告知
JP-Home.com 日本房屋網為上益國際有限公司經營管理,為了確保消費者之個人資料、隱私及消費者權益之保護,於交易過程中將使用消費者之個人資料,謹依個人資料保護法第 8 條規定,蒐集個人資料除用於本公司之會員管理、客戶管理之檢索查詢等功能外,本公司將利用個人電話號碼、LINE、Email 資料進行行銷,如有侵害到個人權益,請告知請求刪除會員資料。


  • 宜家國際地產(統一編號:42647425)
    本網站所刊登之不動產物件均已合法授權刊登
    本網站內容享有著作權,禁止侵害,違者必究
    Copyright © 2011 - 2026 All Rights Reserved