物件搜尋:


東京都下 府中市(府中市本宿町4丁目戸建)

專家的建議


◆大和ハウス工業設計・施工 こだわり的注文住宅

◇広々間取りでゆとりある暮らしを実現
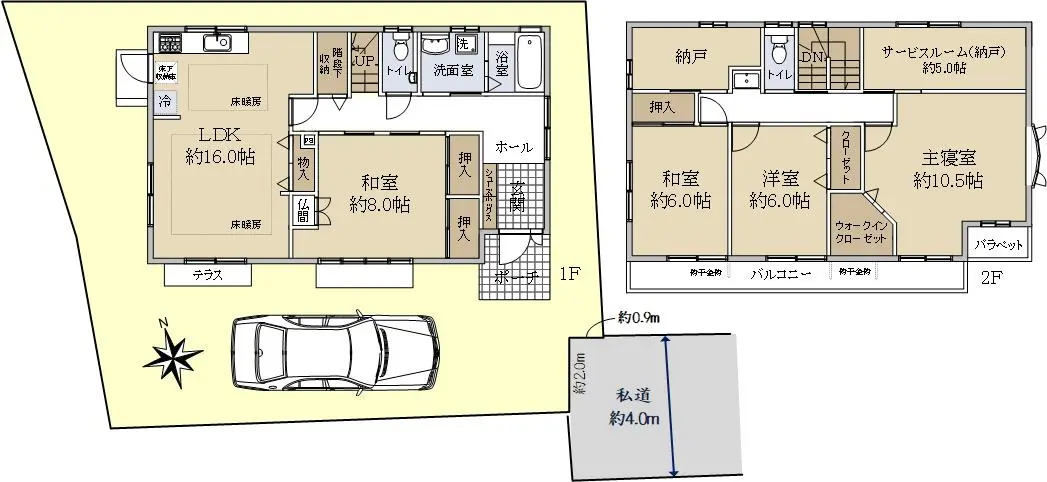
【LDK約16.0帖、主寝室約10.5帖】

◆全室南向き+南側ロングバルコニーで日当たり良好

◇LDK的床暖房、サービスルーム(納戸)約5.0帖など設備充実

◆静かで住み心地的良い住宅街

◇「西府」駅、「分倍河原」駅が徒歩圏内で通勤・生活に便利

≪リフォーム内容≫

近期網站遭惡意攻擊,基於安全考量
目前僅接受會員查詢物件詳細資料
類型 一戶建
物件編號 1093615
名稱 府中市本宿町4丁目戸建
價格 6,780万円
物件現況 空家
管理費等 0円
修繕積立金 0円
所在地 東京都府中市本宿町4丁目
交通 南武線西府 (步行 12 分)
格局 4SLDK
房號 --
總樓層 2階建 
屋齡 2002 年 (築 24 年)
面積 137.88㎡
約 41.71 坪
約 1,484.14 平方英呎
平米單價 日幣:49.17万円
台幣:9.92萬
港幣:2.44萬
坪單價 日幣:162.56万円
台幣:32.78萬
港幣:8.08萬
平方英呎 日幣:4.57万円
台幣:0.92萬
港幣:0.23萬
總戶數 1
方位 --
建築構造 軽量鉄骨
土地權利 所有権
用途地域 第1種低層住居専用地域
土地面積 173.86㎡
都市計畫 市街化区域
備註 ご覧いただき誠にありがとうございます。
<府中市本宿町4丁目戸建>のご紹介です。

LDKは約16.0帖、各寝室は約6.0帖以上の広さが確保された、
ファミリー層もゆったりと暮らせるお家です。
機能性にも優れており、LDKの床暖房、サービスルーム(納戸)、
浴室乾燥暖房機など、生活に役立つ設備が豊富に備わっています。

2026年1月末リフォーム完成予定のため、
キレイな空間で快適に新生活をスタートできます。
情報公開日 2025年11月24日
目前狀態 空家
合約狀態 仲介
個人情報蒐集前告知
JP-Home.com 日本房屋網為上益國際有限公司經營管理,為了確保消費者之個人資料、隱私及消費者權益之保護,於交易過程中將使用消費者之個人資料,謹依個人資料保護法第 8 條規定,蒐集個人資料除用於本公司之會員管理、客戶管理之檢索查詢等功能外,本公司將利用個人電話號碼、LINE、Email 資料進行行銷,如有侵害到個人權益,請告知請求刪除會員資料。


  • 宜家國際地產(統一編號:42647425)
    本網站所刊登之不動產物件均已合法授權刊登
    本網站內容享有著作權,禁止侵害,違者必究
    Copyright © 2011 - 2026 All Rights Reserved