物件搜尋:


東京都下 八王子市(八王子市七国5丁目戸建)

專家的建議


≪アクセス≫
・JR横浜線「八王子みなみ野」駅までバス乗車8分、「みなみ野シティ中央」バス停歩2分

≪おすすめポイント≫
・2×4工法
・設計住宅性能評価書
・建設住宅性能評価書
・全居室LAN対応配線
・リビングダイニングにTES温水床暖房
・Low-E複層ガラス
・浴室暖房換気乾燥機
・全居室南東向き・土地面積:174.84㎡(52.88坪)
・建物面積:105.61㎡(

近期網站遭惡意攻擊,基於安全考量
目前僅接受會員查詢物件詳細資料
類型 一戶建
物件編號 1093767
名稱 八王子市七国5丁目戸建
價格 5,780万円 > 4,980万円
物件現況 居住中
管理費等 0円
修繕積立金 0円
所在地 東京都八王子市七国5丁目
交通 横浜線八王子みなみ野 (步行 20 分)
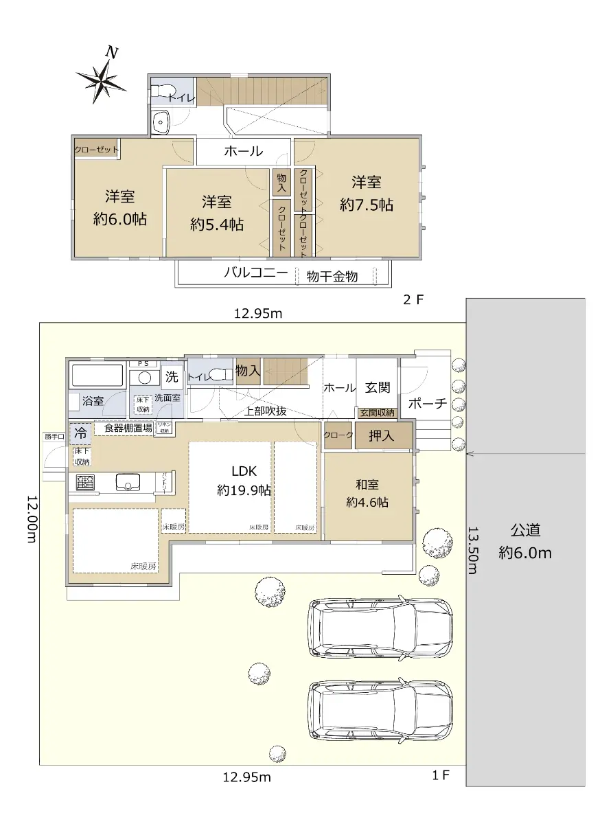
格局 4LDK
房號 --
總樓層 2階建 
屋齡 2014 年 (築 12 年)
面積 105.61㎡
約 31.95 坪
約 1,136.79 平方英呎
平米單價 日幣:54.73万円
台幣:10.92萬
港幣:2.70萬
坪單價 日幣:180.92万円
台幣:36.11萬
港幣:8.92萬
平方英呎 日幣:5.08万円
台幣:1.01萬
港幣:0.25萬
總戶數 1
方位 --
建築構造 木造
土地權利 所有権
用途地域 第1種低層住居専用地域
土地面積 174.84㎡
都市計畫 市街化区域
備註 この度は「八王子市七国5丁目戸建」のページをご覧いただき誠にありがとうございます。

本物件はJR横浜線「八王子みなみ野」駅までバス乗車8分、「みなみ野シティ中央」バス停歩2分の場所に位置しております。
周辺にはスーパーやコンビニ、ドラッグストアが徒歩9分圏内(約650m圏内)にあり、生活しやすい環境になります。
間取りは4LDKで、各居室にクローゼットがあり、すっきりと整理整頓しやすい造りです。
また、朝日が差し込む南東向きのリビングは家族団らんの場所となります。

■物件のご検討については、是非現地周辺をご覧になることをお勧め致します

■詳細のご質問やを現地周辺ご案内や資料請求をご希望の際は、営業担当「渡邉」までお問い合わせ下さい
情報公開日 2025年11月25日
目前狀態 居住中
合約狀態 仲介
個人情報蒐集前告知
JP-Home.com 日本房屋網為上益國際有限公司經營管理,為了確保消費者之個人資料、隱私及消費者權益之保護,於交易過程中將使用消費者之個人資料,謹依個人資料保護法第 8 條規定,蒐集個人資料除用於本公司之會員管理、客戶管理之檢索查詢等功能外,本公司將利用個人電話號碼、LINE、Email 資料進行行銷,如有侵害到個人權益,請告知請求刪除會員資料。