物件搜尋:


京都府 京都市上京区(京都市上京区大宮通五辻下る観世町戸建)

專家的建議


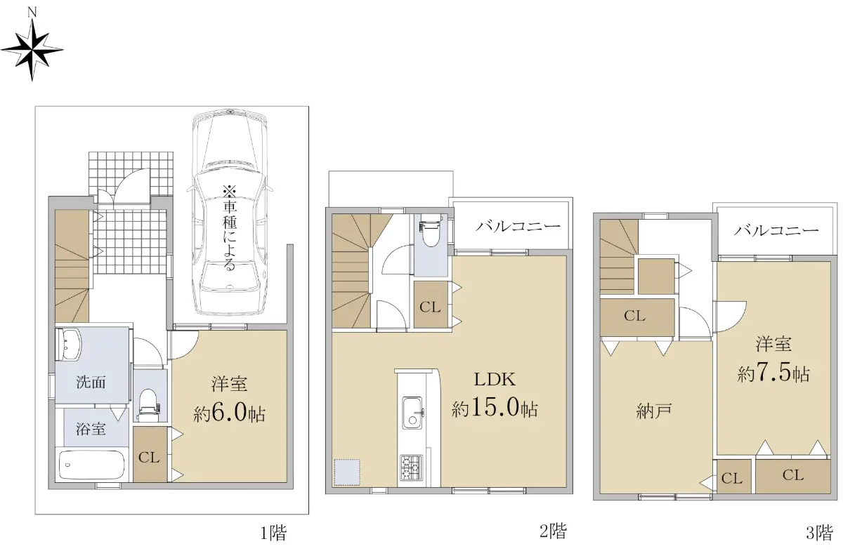
●交通アクセス
京都市烏丸線「今出川」駅まで徒歩14分
●前面道路幅員約5.0m
●平成18年2月建築
●3階建て
●駐車場有 ※車種による
●バルコニー2カ所有
●浴室に窓有
●LDに床暖房有
●令和6年10月
キッチン新調、洗面化粧台新調


●周辺環境
ファミリーマート堀川今出川店まで約370m
イオンスタイル西陣小町まで約260m

近期網站遭惡意攻擊,基於安全考量
目前僅接受會員查詢物件詳細資料
類型 一戶建
物件編號 1094856
名稱 京都市上京区大宮通五辻下る観世町戸建
價格 4,400万円 > 3,980万円
物件現況 居住中
管理費等 0円
修繕積立金 0円
所在地 京都府京都市上京区観世町
交通 京都市烏丸線今出川 (步行 14 分)
格局 2SLDK
房號 --
總樓層 3階建 
屋齡 2006 年 (築 20 年)
面積 89.91㎡
約 27.20 坪
約 967.79 平方英呎
平米單價 日幣:48.94万円
台幣:9.81萬
港幣:2.42萬
坪單價 日幣:161.78万円
台幣:32.42萬
港幣:7.99萬
平方英呎 日幣:4.55万円
台幣:0.91萬
港幣:0.22萬
總戶數 1
方位 --
建築構造 木造
土地權利 所有権
用途地域 近隣商業地域
土地面積 55.97㎡
都市計畫 市街化区域
備註 この度は上京区観世町(かんぜちょう)の物件ページを
ご覧頂きまして誠にありがとうございます。

地下鉄烏丸線今出川駅徒歩14分に所在する
中古戸建でございます。

土地は北向きの55.97㎡で
建物は平成18年建築の3階建てのお家でございます。

お部屋は丁寧にご利用されておりまして
情報公開日 2025年12月6日
目前狀態 居住中
合約狀態 仲介
個人情報蒐集前告知
JP-Home.com 日本房屋網為上益國際有限公司經營管理,為了確保消費者之個人資料、隱私及消費者權益之保護,於交易過程中將使用消費者之個人資料,謹依個人資料保護法第 8 條規定,蒐集個人資料除用於本公司之會員管理、客戶管理之檢索查詢等功能外,本公司將利用個人電話號碼、LINE、Email 資料進行行銷,如有侵害到個人權益,請告知請求刪除會員資料。


  • 宜家國際地產(統一編號:42647425)
    本網站所刊登之不動產物件均已合法授權刊登
    本網站內容享有著作權,禁止侵害,違者必究
    Copyright © 2011 - 2026 All Rights Reserved