物件搜尋:


神奈川県 川崎市川崎区(ふじやエンゼルハイム川崎第6)

專家的建議


■オーナーチェンジにつき現賃貸借契約的引継が条件です。

近期網站遭惡意攻擊,基於安全考量
目前僅接受會員查詢物件詳細資料
類型 店鋪
物件編號 1095009
名稱 ふじやエンゼルハイム川崎第6
價格 3,980万円
物件現況 出租中
管理費等 44,688円
修繕積立金 41,770円
可月出租 275,000円
投報率 5.68%
所在地 神奈川県川崎市川崎区鋼管通1丁目
交通 東海道本線「川崎」 (步行時間待查)
格局 1R
房號 --
總樓層 1階部分/7階建 
屋齡 1991 年 (築 34 年)
面積 壁芯139.21㎡
約 42.11 坪
約 1,498.46 平方英呎
平米單價 日幣:28.59万円
台幣:5.77萬
港幣:1.44萬
坪單價 日幣:94.51万円
台幣:19.08萬
港幣:4.74萬
平方英呎 日幣:2.66万円
台幣:0.54萬
港幣:0.13萬
總戶數 13
方位 南東
建築構造 鉄筋コンクリート造
土地權利 所有権
管理形態 --
管理公司 株式会社長谷工コミュニティ / 全部委託
土地面積 -
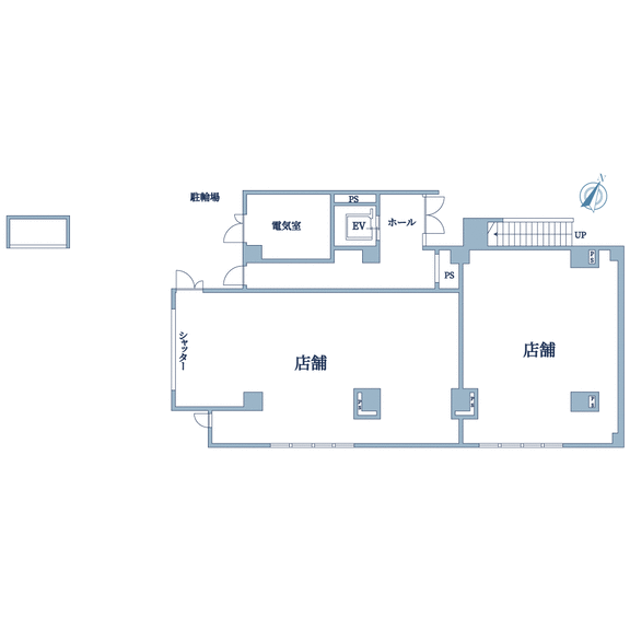
備註 ふじやエンゼルハイム川崎第6  ~1階 店舗部分~

◆1階店舗部分を店舗内で間仕切り、現状2店舗に賃貸中です♪
①中華料理店、約57㎡、月額143,000円
②トランクルーム、約65㎡、月額132,000円
①+②=月額275,000円(表面利回り8.29%)

◆徒歩1分の距離にバス停「鋼管通二丁目」があるため、川崎駅へのアクセスも良好です♪
情報公開日 2025年12月9日
目前狀態 賃貸中
合約狀態 仲介
個人情報蒐集前告知
JP-Home.com 日本房屋網為上益國際有限公司經營管理,為了確保消費者之個人資料、隱私及消費者權益之保護,於交易過程中將使用消費者之個人資料,謹依個人資料保護法第 8 條規定,蒐集個人資料除用於本公司之會員管理、客戶管理之檢索查詢等功能外,本公司將利用個人電話號碼、LINE、Email 資料進行行銷,如有侵害到個人權益,請告知請求刪除會員資料。