物件搜尋:


埼玉県 志木市(志木市上宗岡3丁目不動産)

專家的建議


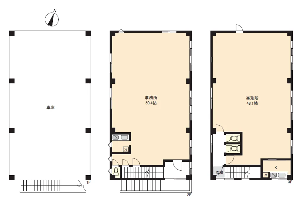
・私道負担:あり 面積127㎡

近期網站遭惡意攻擊,基於安全考量
目前僅接受會員查詢物件詳細資料
類型 整棟大樓
物件編號 1095138
價格 4,980万円
物件現況 空室
管理費等 0円
修繕積立金 0円
可月出租 440,000円
投報率 10.60%
所在地 埼玉県志木市 上宗岡
交通 東武東上線 志木 バス19分 上宗岡二丁目下車 徒歩6分 (步行時間待查)
格局 1R
房號 --
總樓層 2階建 
屋齡 1991 年 (築 34 年)
面積 -
約 0.00 坪
約 0.00 平方英呎
平米單價 日幣:万円
台幣:萬
港幣:萬
坪單價 日幣:万円
台幣:萬
港幣:萬
平方英呎 日幣:万円
台幣:萬
港幣:萬
總戶數 1
方位 -
建築構造 鉄骨造
土地權利 所有権
用途地域 準工業地域
土地面積 150.63㎡
都市計畫 市街化区域
設備 公共下水 / 公営水道 / 浴室乾濕分離 / 東京電力 / 駐車場(空有) / 風呂なし / 専用廁所 / 自行車停車場 / バイク置き場
情報公開日 2025年12月11日
目前狀態 空室
合約狀態 仲介
個人情報蒐集前告知
JP-Home.com 日本房屋網為上益國際有限公司經營管理,為了確保消費者之個人資料、隱私及消費者權益之保護,於交易過程中將使用消費者之個人資料,謹依個人資料保護法第 8 條規定,蒐集個人資料除用於本公司之會員管理、客戶管理之檢索查詢等功能外,本公司將利用個人電話號碼、LINE、Email 資料進行行銷,如有侵害到個人權益,請告知請求刪除會員資料。