物件搜尋:


大阪府 大阪市浪速区(浪速区桜川2丁目店舗付住宅)

專家的建議


◆大阪メトロ千日前線・阪神なんば線
 『桜川』駅 徒歩4分
◆JR関西本線
 『JRなんば』駅 徒歩8分
◆南海汐見橋線
 『汐見橋』駅 徒歩7分
◆大阪メトロ四つ橋線
 『なんば』駅 徒歩12分

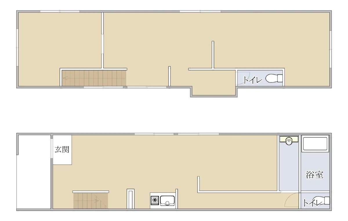
~令和7年10月リフォーム済み~
■水回り:キッチン、浴室、トイレ、洗面所、給排水管、給湯器交換
■内装:内装全室(床・壁・天井・建具)、サッシ交換
■外装:外壁、屋根塗装

近期網站遭惡意攻擊,基於安全考量
目前僅接受會員查詢物件詳細資料
類型 店鋪附住宅
物件編號 1095674
名稱 浪速区桜川2丁目店舗付住宅
價格 11,800万円
物件現況 空家
管理費等 0円
修繕積立金 0円
所在地 大阪府大阪市浪速区桜川2丁目
交通 大阪メトロ千日前線桜川 (步行 4 分)
房號 --
總樓層 2階建 
屋齡 1965 年 (築 60 年)
面積 85.00㎡
約 25.71 坪
約 914.94 平方英呎
平米單價 日幣:138.82万円
台幣:27.82萬
港幣:6.93萬
坪單價 日幣:458.92万円
台幣:91.98萬
港幣:22.92萬
平方英呎 日幣:12.90万円
台幣:2.58萬
港幣:0.64萬
總戶數 1
方位 --
建築構造 木造
土地權利 所有権
用途地域 準工業地域
土地面積 53.28㎡
都市計畫 市街化区域
備註 アクセスいただき、ありがとうございます。
『浪速区桜川2丁目店舗付住宅』
物件担当の【永井】(ながい)と申します。

本物件は、「桜川駅」徒歩4分、「なんば駅」徒歩8分の立地に位置し、令和7年10月に改装されております。
現在、宿泊所として利用中ですが、汎用性の高い物件となっております。

ご内覧をご希望の際は、予約制で承っておりますので、皆様からのお問合せ心よりお待ちしております。
住友不動産ステップ(株) 豊中営業センター担当【永井】迄、お問合せ下さいませ。
情報公開日 2025年12月14日
目前狀態 空家
合約狀態 仲介
個人情報蒐集前告知
JP-Home.com 日本房屋網為上益國際有限公司經營管理,為了確保消費者之個人資料、隱私及消費者權益之保護,於交易過程中將使用消費者之個人資料,謹依個人資料保護法第 8 條規定,蒐集個人資料除用於本公司之會員管理、客戶管理之檢索查詢等功能外,本公司將利用個人電話號碼、LINE、Email 資料進行行銷,如有侵害到個人權益,請告知請求刪除會員資料。


  • 宜家國際地產(統一編號:42647425)
    本網站所刊登之不動產物件均已合法授權刊登
    本網站內容享有著作權,禁止侵害,違者必究
    Copyright © 2011 - 2025 All Rights Reserved