物件搜尋:


京都府 京都市左京区(京都市左京区下鴨本町 戸建)

專家的建議


■前面道路幅員約5.9m 
■南向き
■建築用地としておすすめです
■閑静な住宅街に位置しております
■京都地下鉄烏丸線 松ケ崎駅まで徒歩16分
ーーーー周辺施設ーーーー
セブンイレブン京都下鴨膳部町店まで約350m
コープ下鴨まで約450m
京都銀行下鴨支店まで約180m
京都洛北高校前郵便局まで約290m
葵小学校まで約300m
下鴨中学校まで約850m
保育所型認定こども

近期網站遭惡意攻擊,基於安全考量
目前僅接受會員查詢物件詳細資料
類型 一戶建
物件編號 1095945
名稱 京都市左京区下鴨本町 戸建
價格 13,000万円 > 12,090万円
物件現況 空家
管理費等 0円
修繕積立金 0円
所在地 京都府京都市左京区下鴨本町
交通 京都市烏丸線北大路 (步行 16 分)
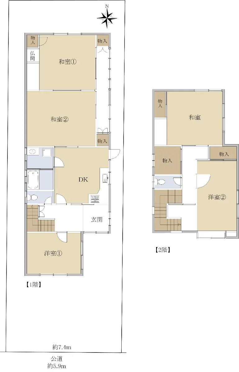
格局 5DK
房號 --
總樓層 2階建 
屋齡 1982 年 (築 44 年)
面積 137.18㎡
約 41.50 坪
約 1,476.61 平方英呎
平米單價 日幣:94.77万円
台幣:19.30萬
港幣:4.78萬
坪單價 日幣:313.28万円
台幣:63.79萬
港幣:15.80萬
平方英呎 日幣:8.80万円
台幣:1.79萬
港幣:0.44萬
總戶數 1
方位 --
建築構造 木造
土地權利 所有権
用途地域 第1種低層住居専用地域/近隣商業地域
土地面積 171.92㎡
都市計畫 市街化区域
備註 弊社ホームページをご覧頂き誠にありがとうございます。
物件に関する、お問合せ、現地のご確認、関連資料のご希望などは
担当 野村 までお気軽にお申し付けください。

不動産の購入をご検討の方へ
【百聞は一見に如かず】と言いますので、ご興味のある物件はまずご内見ください。
間取りや写真を見て頂くことよりも、現地をご確認頂くことで、周辺環境や日当たり、風通し等様々な情報が入ってきます。
また、物件探しでは、ご内見いただいた数が経験値となり、不動産の良い点、悪い点を見つけやすく、
失敗しにくい物件のご選択をしていただくことにもつながります。
ご興味のある物件でしたら、是非とも、ご内見・現地のご確認ください。
情報公開日 2025年12月15日
目前狀態 空家
合約狀態 仲介
個人情報蒐集前告知
JP-Home.com 日本房屋網為上益國際有限公司經營管理,為了確保消費者之個人資料、隱私及消費者權益之保護,於交易過程中將使用消費者之個人資料,謹依個人資料保護法第 8 條規定,蒐集個人資料除用於本公司之會員管理、客戶管理之檢索查詢等功能外,本公司將利用個人電話號碼、LINE、Email 資料進行行銷,如有侵害到個人權益,請告知請求刪除會員資料。