物件搜尋:


東京23区 世田谷区(世田谷区野沢3丁目戸建)

專家的建議


セールスポイント

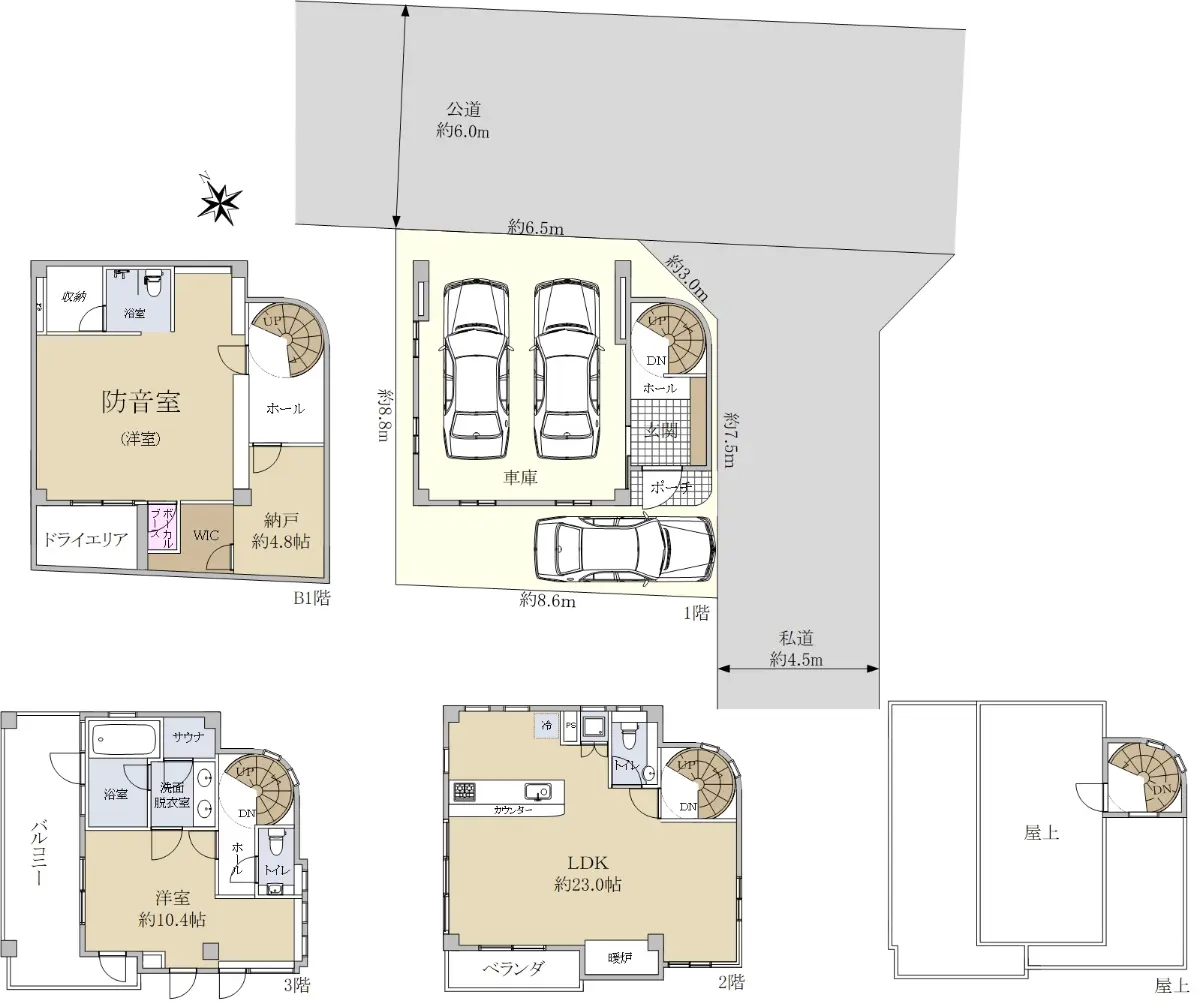
◆鉄骨鉄筋コンクリート造 地下1階付3階建

◆南東×北東角地につき陽当たり良好

◆シャッター付き車庫2台分+カースペース1台分あり(車種による) 

◆延床面積:182.72㎡(約55.27坪)

◆LDK:約23帖

◆屋上付き

近期網站遭惡意攻擊,基於安全考量
目前僅接受會員查詢物件詳細資料
類型 一戶建
物件編號 1095957
名稱 世田谷区野沢3丁目戸建
價格 17,200万円 > 16,800万円
物件現況 居住中
管理費等 0円
修繕積立金 0円
所在地 東京都世田谷区野沢3丁目
交通 東急東横線学芸大学 (步行 14 分)
格局 2LDK
房號 --
總樓層 3階建 
屋齡 2003 年 (築 23 年)
面積 182.72㎡
約 55.27 坪
約 1,966.80 平方英呎
平米單價 日幣:94.13万円
台幣:19.17萬
港幣:4.75萬
坪單價 日幣:311.18万円
台幣:63.36萬
港幣:15.69萬
平方英呎 日幣:8.75万円
台幣:1.78萬
港幣:0.44萬
總戶數 1
方位 --
建築構造 鉄骨鉄筋コンクリート造
土地權利 所有権
用途地域 第1種低層住居専用地域
土地面積 81.27㎡
都市計畫 市街化区域
備註 本物件は、東急東横線学芸大学まで徒歩14分に位置する戸建です。
物件のご検討については、写真や図面だけではなく、現地を見ていただく事をお勧めします。
現地をご覧頂くことにより周辺環境や物件の仕様等を確認いただくだけでなく、プロの目から見た長所・短所等を詳しくご説明差し上げる事もできます。
ご興味をお持ちのお客様は是非お問い合わせ下さい。

本物件に関するご質問やご案内をご希望される場合は、日本橋営業センター担当(宮本)までお気軽にご連絡ください。
情報公開日 2025年12月15日
目前狀態 居住中
合約狀態 仲介
個人情報蒐集前告知
JP-Home.com 日本房屋網為上益國際有限公司經營管理,為了確保消費者之個人資料、隱私及消費者權益之保護,於交易過程中將使用消費者之個人資料,謹依個人資料保護法第 8 條規定,蒐集個人資料除用於本公司之會員管理、客戶管理之檢索查詢等功能外,本公司將利用個人電話號碼、LINE、Email 資料進行行銷,如有侵害到個人權益,請告知請求刪除會員資料。