物件搜尋:


東京23区 品川区(品川区中延2丁目戸建)

專家的建議


◆東急池上線「荏原中延」駅まで徒歩4分
◆東急大井町線「中延」駅まで徒歩9分

-*∴*-物件概要-*∴*-
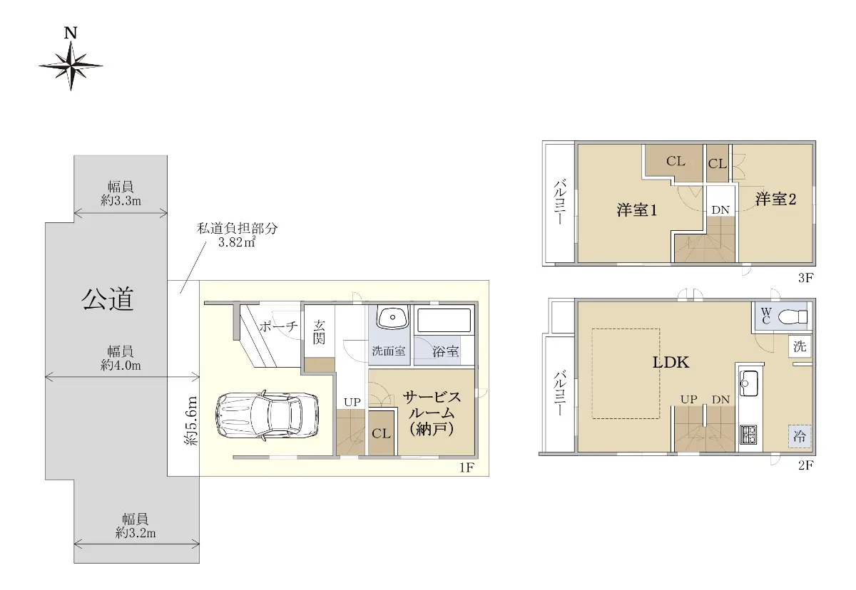
◇土地面積:55.93㎡(別途、私道負担面積3.82㎡有)
◇建物面積:76.07㎡
◇間取り:2LDK+S
◇木造3階建
◇築年月:2019年6月

-*∴*-おすすめポイント-*∴*-
◇食器洗い乾燥機付き
◇TVモニター付きインターフォン有り
◇全居室収

近期網站遭惡意攻擊,基於安全考量
目前僅接受會員查詢物件詳細資料
類型 一戶建
物件編號 1096096
名稱 品川区中延2丁目戸建
價格 8,580万円
物件現況 居住中
管理費等 0円
修繕積立金 0円
所在地 東京都品川区中延2丁目
交通 東急池上線荏原中延 (步行 4 分)
格局 2SLDK
房號 --
總樓層 3階建 
屋齡 2019 年 (築 6 年)
面積 76.07㎡
約 23.01 坪
約 818.82 平方英呎
平米單價 日幣:112.79万円
台幣:22.88萬
港幣:5.65萬
坪單價 日幣:372.86万円
台幣:75.64萬
港幣:18.66萬
平方英呎 日幣:10.48万円
台幣:2.13萬
港幣:0.52萬
總戶數 1
方位 --
建築構造 木造
土地權利 所有権
用途地域 第1種住居地域
土地面積 55.93㎡
都市計畫 市街化区域
備註 この度は『品川区中延2丁目戸建』のページをご覧いただき、誠に有難うございます。

***不動産の購入を検討中のお客様へ****

物件探しの基本は「物件を実際に見て頂くこと」にあります。
写真や図面だけではなく、実際に現地を見て頂く事をお勧めいたします。
現地を見て頂くことで、周辺環境や物件の状態が明確にご理解頂けるとともに、
プロの目から見た物件の長所・短所、購入の際の注意点を詳しくご説明させて頂きます。

こちらの物件にご興味をお持ちのお客様は是非ともお問い合わせください。
情報公開日 2025年12月17日
目前狀態 居住中
合約狀態 仲介
個人情報蒐集前告知
JP-Home.com 日本房屋網為上益國際有限公司經營管理,為了確保消費者之個人資料、隱私及消費者權益之保護,於交易過程中將使用消費者之個人資料,謹依個人資料保護法第 8 條規定,蒐集個人資料除用於本公司之會員管理、客戶管理之檢索查詢等功能外,本公司將利用個人電話號碼、LINE、Email 資料進行行銷,如有侵害到個人權益,請告知請求刪除會員資料。