物件搜尋:


東京23区 世田谷区(深沢ハウスD棟)

專家的建議


・そ的他費用:環境改善積立金380円

近期網站遭惡意攻擊,基於安全考量
目前僅接受會員查詢物件詳細資料
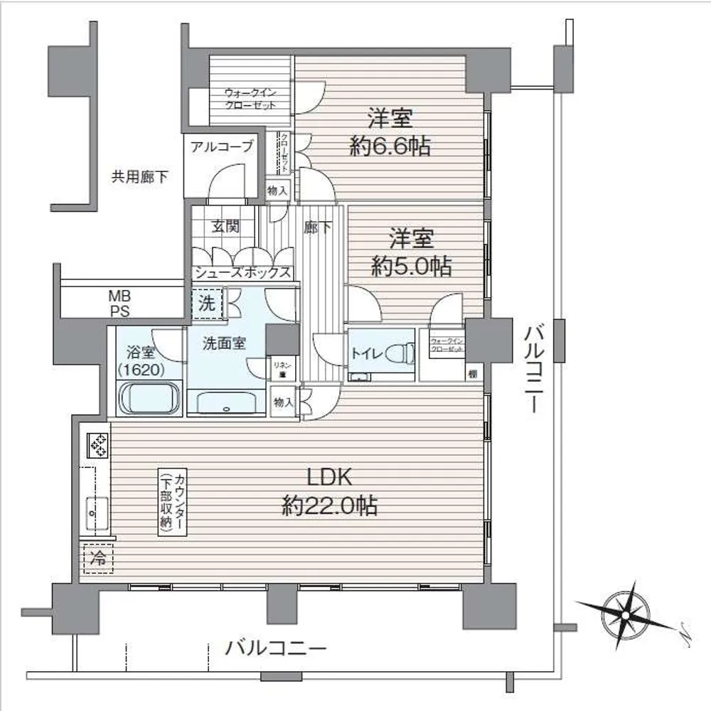
類型 大樓
物件編號 1096264
價格 17,500万円
物件現況 出租中
管理費等 21,500円
修繕積立金 16,570円
可月出租 350,000円
投報率 2.14%
所在地 東京都世田谷区 深沢2丁目
交通 東横線 都立大学 徒歩19分 (步行 19 分)
格局 2LDK
房號 --
總樓層 9階部分/19階建 
屋齡 2004 年 (築 21 年)
面積 86.84㎡(壁芯)
約 26.27 坪
約 934.75 平方英呎
陽台 35m²
約 10.59 坪
約 376.74 平方英呎
平米單價 日幣:201.52万円
台幣:40.49萬
港幣:9.99萬
坪單價 日幣:666.18万円
台幣:133.85萬
港幣:33.02萬
平方英呎 日幣:18.72万円
台幣:3.76萬
港幣:0.93萬
總戶數 169
方位 北東
建築構造 RC
土地權利 所有権
用途地域 第1種中高層住居専用地域/第1種低層住居専用地域
管理形態 全部委託
管理公司 メイン外観
管理人 日勤
土地面積 -
都市計畫 市街化区域
設備 電梯 / 瓦斯熱水供應器 / 公共下水 / 公営水道 / 都市瓦斯 / 東京電力 / 駐車場(空有) / 宅配BOX / 敷地内ゴミ置き場 / 室内洗濯機置き場 / 地板 / 専用風呂 / 淋浴設備 / 追い炊き機能 / 浴室乾燥機 / 専用廁所 / 免治馬桶 / 独立洗面台 / 浴缸・廁所別 / 整體廚房 / 廚房櫃檯 / アイランドキッチン / 全居室収納 / シューズボックス / 獨間更衣室 / 監視器 / AUTO LOCK / TVインターホン / 2階以上 / その他インターネット / BSCS対応 / BS対応 / 有線電視対応 / 自行車停車場 / バイク置き場 / 陽台 / ファミリー向け / ペットOK / 邊間房
情報公開日 2025年12月19日
目前狀態 賃貸中
合約狀態 売主
個人情報蒐集前告知
JP-Home.com 日本房屋網為上益國際有限公司經營管理,為了確保消費者之個人資料、隱私及消費者權益之保護,於交易過程中將使用消費者之個人資料,謹依個人資料保護法第 8 條規定,蒐集個人資料除用於本公司之會員管理、客戶管理之檢索查詢等功能外,本公司將利用個人電話號碼、LINE、Email 資料進行行銷,如有侵害到個人權益,請告知請求刪除會員資料。