物件搜尋:


京都府 京都市北区(京都市北区紫野東藤ノ森町戸建)

專家的建議


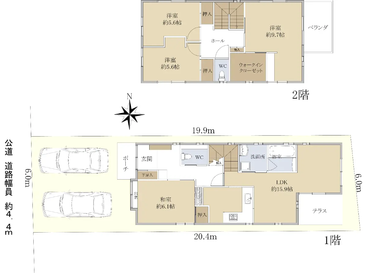
■土地36.66坪
■平成21年1月建築
■地下鉄「鞍馬口」駅徒歩15分
■太陽光発電設備あり
■閑静な住宅地
■4LDK
■駐車スペース2台分有(車種による)
■トイレ2箇所有
■ウォークインクローゼット有
■テラス有
■居室以外にも多数開口部があり、照明が無くても明るいお家を演出
■落ち着いた和風的お家
■室内丁寧にご使用されています
■間口約6.0m

近期網站遭惡意攻擊,基於安全考量
目前僅接受會員查詢物件詳細資料
類型 一戶建
物件編號 1096414
名稱 京都市北区紫野東藤ノ森町戸建
價格 7,480万円 > 6,480万円
物件現況 居住中
管理費等 0円
修繕積立金 0円
所在地 京都府京都市北区紫野東藤ノ森町
交通 京都市烏丸線鞍馬口 (步行 15 分)
格局 4LDK
房號 --
總樓層 2階建 
屋齡 2009 年 (築 17 年)
面積 108.78㎡
約 32.91 坪
約 1,170.91 平方英呎
平米單價 日幣:68.76万円
台幣:13.76萬
港幣:3.38萬
坪單價 日幣:227.31万円
台幣:45.50萬
港幣:11.16萬
平方英呎 日幣:6.39万円
台幣:1.28萬
港幣:0.31萬
總戶數 1
方位 --
建築構造 木造
土地權利 所有権
用途地域 準工業地域
土地面積 121.22㎡
都市計畫 市街化区域
備註 物件に関する、お問合せ、現地のご確認、関連資料のご希望などは
担当 ホキ本 までお気軽にお申し付けください。

不動産の購入をご検討の方へ
【百聞は一見に如かず】と言いますので、ご興味のある物件はまずご内見ください。
間取りや写真を見て頂くことよりも、現地をご確認頂くことで、周辺環境や日当たり、風通し等様々な情報が入ってきます。
また、物件探しでは、ご内見いただいた数が経験値となり、良いところ、悪いところを見つけやすく、
失敗しにくい物件のご選択をしていただくことにもつながります。
ご興味のある物件でしたら、是非とも、ご内見・現地のご確認ください。
金融機関へのご相談や住宅ローンが借りれるかご不安な方もご相談ください。
情報公開日 2025年12月20日
目前狀態 居住中
合約狀態 仲介
個人情報蒐集前告知
JP-Home.com 日本房屋網為上益國際有限公司經營管理,為了確保消費者之個人資料、隱私及消費者權益之保護,於交易過程中將使用消費者之個人資料,謹依個人資料保護法第 8 條規定,蒐集個人資料除用於本公司之會員管理、客戶管理之檢索查詢等功能外,本公司將利用個人電話號碼、LINE、Email 資料進行行銷,如有侵害到個人權益,請告知請求刪除會員資料。