物件搜尋:


東京23区 世田谷区(世田谷区砧4丁目戸建)

專家的建議


<Sales Point>
○南道路につき、陽当り・通風良好
○温水式床暖房(LD部分)
○各階に温水洗浄機能付トイレ
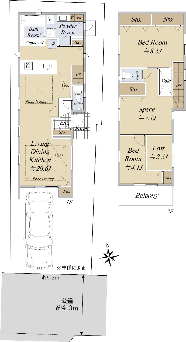
○間取り:2LDK+ロフト+共同スペース
※3LDKへ的間取り変更可(※別途費用要する)
○吹抜け天井(LD部分)
○カースペース

<Life Information>
○区立山野小学校…約170m
○まいばすけっと砧店…約270m
○OdakyuOX祖師谷

近期網站遭惡意攻擊,基於安全考量
目前僅接受會員查詢物件詳細資料
類型 一戶建
物件編號 1096638
名稱 世田谷区砧4丁目戸建
價格 11,000万円
物件現況 居住中
管理費等 0円
修繕積立金 0円
所在地 東京都世田谷区砧4丁目
交通 小田急小田原線祖師ヶ谷大蔵 (步行 7 分)
格局 2LDK
房號 --
總樓層 2階建 
屋齡 2019 年 (築 7 年)
面積 92.12㎡
約 27.87 坪
約 991.58 平方英呎
平米單價 日幣:119.41万円
台幣:24.31萬
港幣:6.02萬
坪單價 日幣:394.74万円
台幣:80.38萬
港幣:19.91萬
平方英呎 日幣:11.09万円
台幣:2.26萬
港幣:0.56萬
總戶數 1
方位 --
建築構造 木造
土地權利 所有権
用途地域 第1種低層住居専用地域
土地面積 103.67㎡
都市計畫 市街化区域
備註 ┏┓ お買いかえもスムーズにご購入をして頂けます
┗□━━━━━━━━━━━━━━━━━━━━━━━

弊社では、買換保証制度・つなぎ融資制度を
ご用意しております。ご自宅のローンは残っているけれど
欲しい物件を買い逃したくない、今後お買い替えをしたい
という方は是非ご相談下さい。



情報公開日 2025年12月22日
目前狀態 居住中
合約狀態 仲介
個人情報蒐集前告知
JP-Home.com 日本房屋網為上益國際有限公司經營管理,為了確保消費者之個人資料、隱私及消費者權益之保護,於交易過程中將使用消費者之個人資料,謹依個人資料保護法第 8 條規定,蒐集個人資料除用於本公司之會員管理、客戶管理之檢索查詢等功能外,本公司將利用個人電話號碼、LINE、Email 資料進行行銷,如有侵害到個人權益,請告知請求刪除會員資料。